Bielany Wrocławskie/ wrocławski/ dolnośląskie
Ogłoszenie dodane: 6 godzin temu
REZERWACJA OFERTY
Zapraszam do zakupu inwestycji w której każdy budynek jest niepowtarzalny, elewacja z elementami cegły rozbiórkowej i tynku. Domy są ekologiczne, ogrzewanie pompą ciepła, okna HST, rolety elektryczne, podłączenie klimatyzacji. Trzy różne metraże domów, oraz indywidualne warianty układów pomieszczeń,
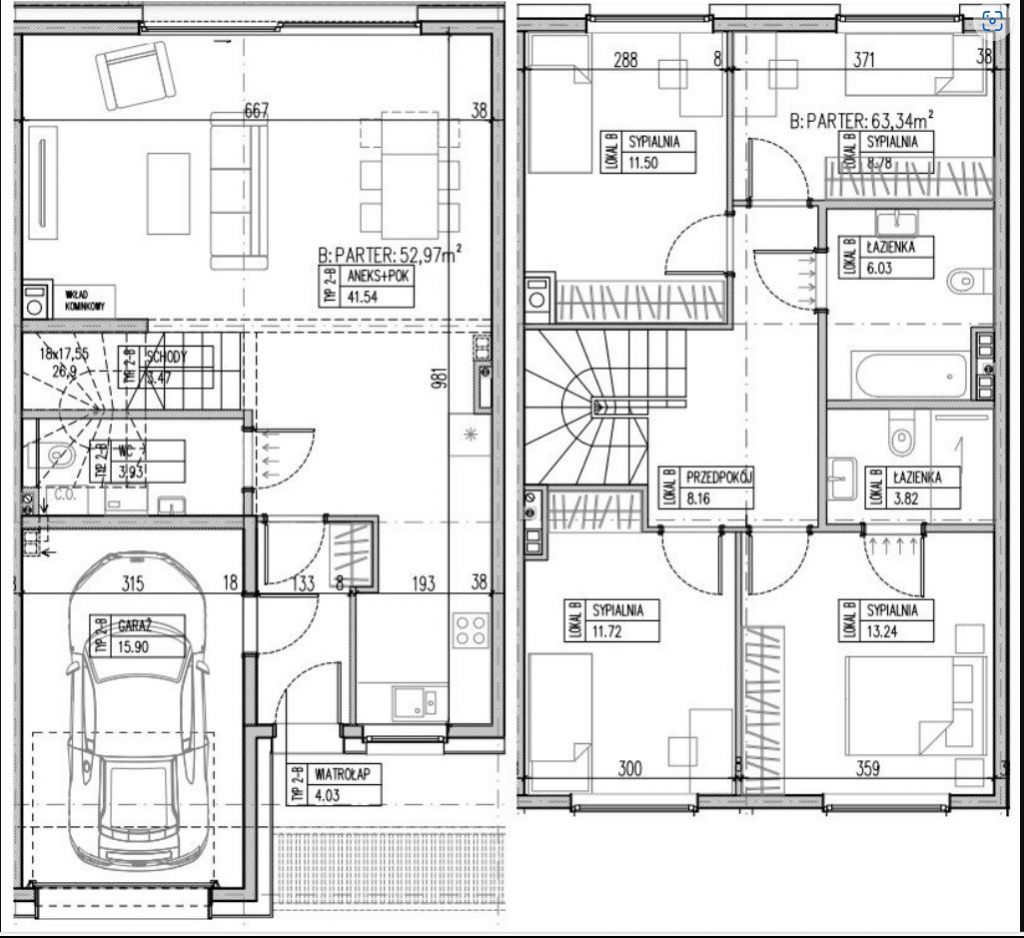
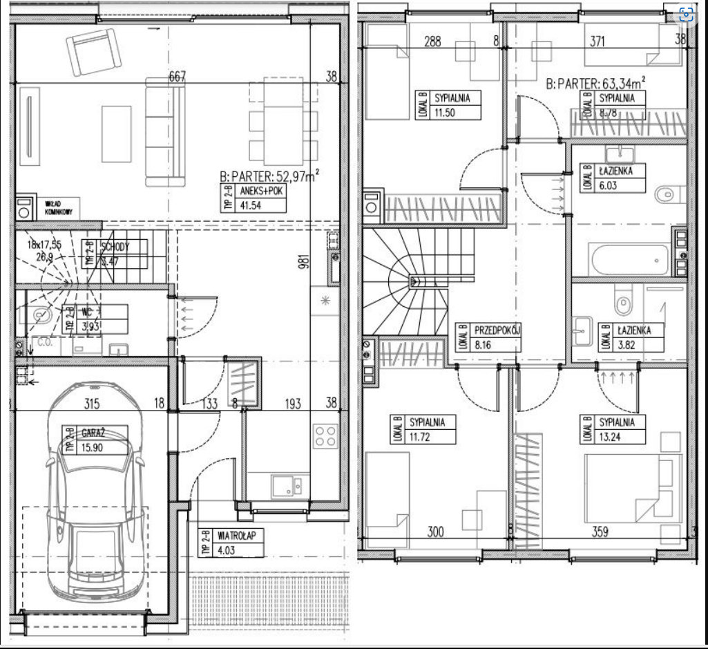
Prezentowany dom ma powierzchnię użytkową 130,73 m2 , ogród ma powierzchnię 42,42m2.
PARTER:
1. Przedsionek – 3,16 m2 2.
2. Toaleta– 3,82m2
3. Pokój dzienny + kuchnia – 41,54m2
4. Garaż – 15,9m2
PIĘTRO:
1. Korytarz– 7,87 m2
2. Łazienka – 6,03 m2
3. Pralnia – 2,69m2
4. Pokój – 13,24m2
5. Pokój– 11,72 m2
6. Pokój – 11,50 m2
7. Pokój- 8,78m2
8. Schody – 5,04 m2
Stan deweloperski:-wykonanie instalacji elektrycznej, antenowej i internetowej w całym domu- wykonanie instalacji C.O., wodnej oraz kanalizacyjnej,- montaż pompy ciepła powietrznej, ogrzewanie podłogowe w całym budynku ,-profil okienny ideal 4000, pakiet 3 szybowe,- drzwi wejściowe, płaskie, pełne lub z tłoczeniem do antywłamaniowe klasy B,- schody wejściowe do budynku,- parapety wewnętrzne pcv kolor okien, zewnętrzne stalowe w kolorze okien,- wykonanie drogi dojazdowej oraz podjazdów z kostki brukowej, ogrodzenie terenu
Termin realizacji inwestycji 30-06-2025Zapraszam do kontaktu w celu przygotowania oferty / umówienia się na prezentacje – Kupujący nie płaci p Zapewniam
- profesjonalną obsługę, gwarantowaną wieloletnim doświadczeniem w branży nieruchomości-możliwość bezpłatnej rezerwacji apartamentu
- kompleksowe wsparcie na każdym etapie transakcji
- gwarancję bezpiecznego zakupu
- oszczędność czasu
-pomoc w uzyskaniu kredytu na najlepszych warunkach
- kompleksowe doradztwo
Ania Kamuda- Doradca klienta
tel. 535 422 188
anna.kamuda@elitare.pl
Nr oferty 01_PAT_3B/AK
Zamieszczone na naszych stronach informacje nie stanowią oferty w rozumieniu Kodeksu Cywilnego, a dane w nich zawarte mają jedynie charakter informacyjny.
OFERTA CENOWA AKTUALNA NA DZIEŃ 13-01-2026 I OBOWIĄZUJE DO DNIA 13-01-2026
