Poznań/ wielkopolskie
Ogłoszenie dodane: 27.08.2025
Na sprzedaż kawalerka o powierzchni 28.67 m2 położona w nowym budynku oddanym do użytku, na Podolanach. Mieszkanie znajduje się przy jednej z najbardziej znanych, modnych i klimatycznych ulic Poznaniu, przy ulicy Jasielskiej. Zakup ten to idealna inwestycja dla pary, singla, zarówno na najem długoterminowy. Idealna lokalizacja. Zapraszamy do kontaktu!
Nowa Inwestycja znajduje się w pobliżu terenów zielonych, w tym Jeziora Rusałka, Fortu VI i Jeziora Strzeszyńskiego, co umożliwi mieszkańcom aktywny wypoczynek i spędzanie czasu na świeżym powietrzu. Inwestycja ta jest skierowana do różnych grup klientów, w tym inwestorów, singli oraz rodzin z dziećmi. Dzięki dogodnej lokalizacji oraz różnorodnej ofercie mieszkań, jest doskonałym miejscem do zamieszkania dla osób poszukujących nowoczesnego i wygodnego mieszkania w otoczeniu zieleni.
Sprzedaż całej inwestycji, skontaktuj się w sprawie otrzymania kompleksowej oferty mieszkań spełniającej Twoje oczekiwania!
Atuty:
Kupujący zwolniony od opłaty prowizji agencyjnej.
Kupujący zwolniony jest z 2% podatku od czynności cywilno-prawnych (PCC).
Niski czynsz utrzymania nieruchomości
Nie wahaj się, zadzwoń 720 802 300 i umów się na prezentację zanim ubiegną Cię inni.
Mówię po ukraińsku i rosyjsku zapraszam do kontaktu pomogę dobrać idealne mieszkanie do Twoich oczekiwań.
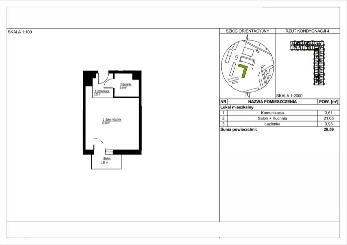
MIESZKANIE: jednopokojowe (kawalerkę), o powierzchnie 28.67 m2.
salon z aneksem kuchennym 21.10 m2
komunikacja 3.60 m2
łazienka 3.97 m2
balkon 2.85 m2
Położenie: Południe
Atuty:
planowany termin oddania do użytku w stanie deweloperskim IV kwartał 2024 r.
do centrum, 7.3 km
blisko komunikacji miejskiej, autobus 230 m
miejsca postojowe naziemne i podziemne.,
domofon, drzwi antywłamaniowe, monitoring,
CO miejskie
funkcjonalna infrastruktura dzielnicy.
Dodatkowo do mieszkania istnieje możliwość zakupu komórki lokatorskiej (3500 zł/m2) oraz miejsca postojowego pojedynczego: 30 000 zł - 35 000 zł. Rodzinnego: 40 000 zł - 50 000 zł.
POSIADMY W OFERCIE SETKI NIEPUBLIKOWANYCH MIESZKAŃ.
ZADZWOŃ LUB NAPISZ, WYŚLĘ PEŁNĄ OFERTĘ MIESZKAŃ SPEŁNIAJĄCYCH TWOJE OCZEKIWANIA.



