Poznań/ wielkopolskie
Ogłoszenie dodane: 4 godziny temu
Polecamy do kupna niezwykle komfortowy dom w zabudowie bliźniaczej położony w świetnej lokalizacji na Umultowie w Poznaniu (prawa połowa bliźniaka zaznaczona na niektórych zdjęciach).
Nieruchomość znajduje się w jednej z najbardziej pożądanych dzielnic Poznania pod budowę domu.
Dom sprzedawany jest w stanie surowym zamkniętym z dodatkowo wykonanym dociepleniem i elewacją. Wnętrze domu jest do całkowitego wykończenia, łącznie z instalacjami.
Jest to znakomity i komfortowy projekt dla całej rodziny.
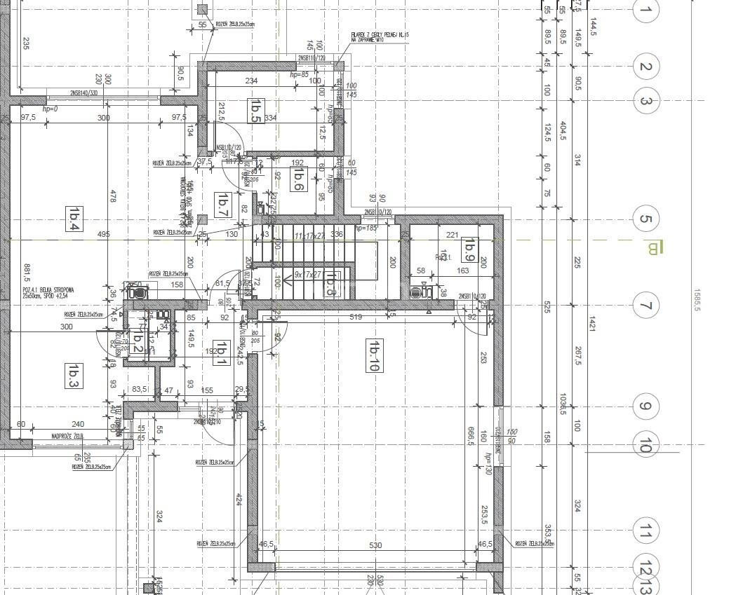
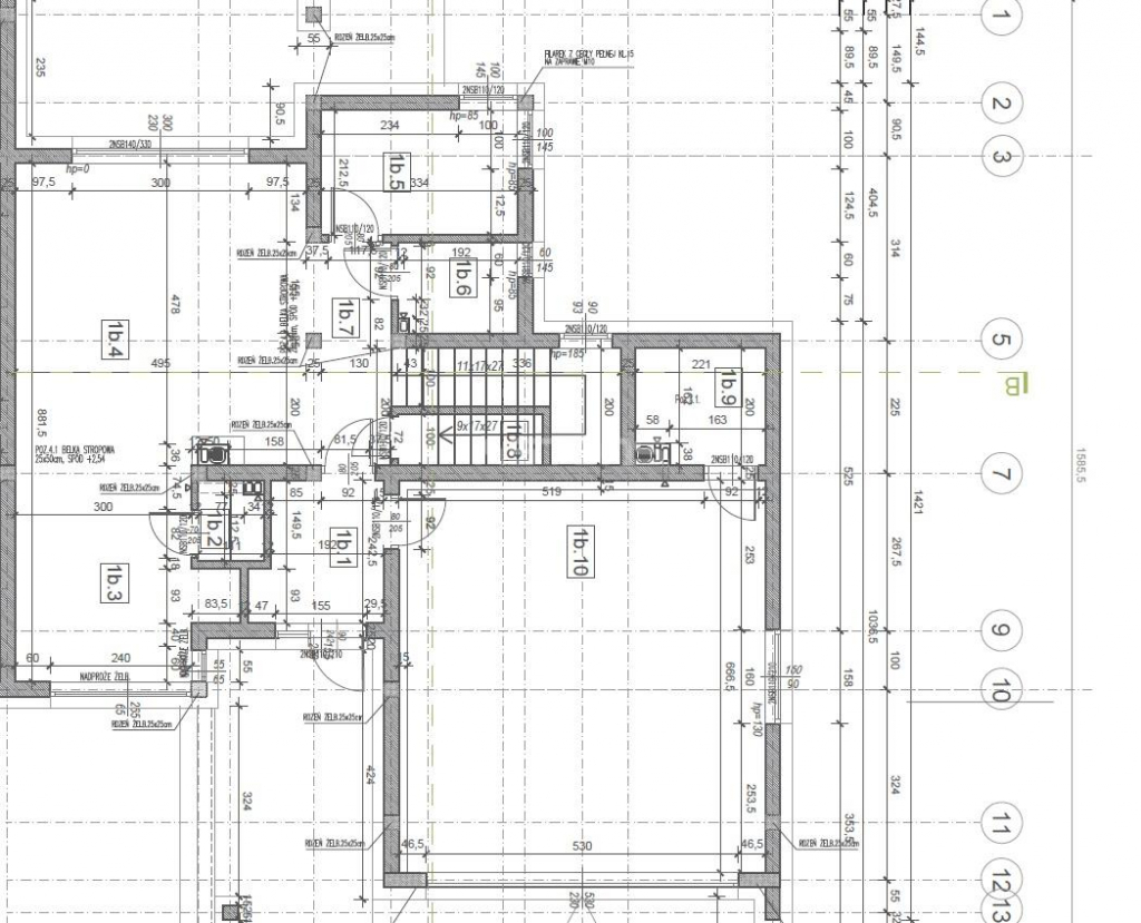
Powierzchnia użytkowa domu wynosi 162,2 m2, do której dochodzi powierzchnia dwustanowiskowego garażu w bryle oraz powierzchnia kotłowni, łącznie dając 208,9 m2 powierzchni całkowitej.
Łączna powierzchnia działki wraz ze wskazanym dojazdem z ul. Bursztynowej wynosi ok 654 m2.
UKŁAD POMIESZCZEŃ
Dom odznacza się bardzo wygodnym rozkładem pomieszczeń, który zadowoli najbardziej wymagających:
Parter
Wiatrołap: 5,0 m
Spiżarnia: 1,4 m
Kuchnia: 11,8 m
Salon: 26,1 m
Gabinet: 7,1 m
Łazienka: 3,1 m
Komunikacja: 9,6 m
Schowek: 1,4 m
Suma pomieszczeń użytkowych parteru: 65,5 m
Kotłownia: 4,2 m
Garaż dwustanowiskowy: 42,5 m
RAZEM parter (brutto): 112,2 m
Piętro
Komunikacja: 9,0 m
Pokój 1: 24,7 m + garderoba 4,2 m
Pokój 2: 17,3 m + garderoba 2,3 m
Pokój 3: 16,6 m + garderoba 2,3 m + łazienka 3,1 m
Pokój 4: 8,3 m
Łazienka: 6,6 m
Pralnia: 2,3 m
Suma piętra: 96,7 m
Jest to niezwykle komfortowy projekt bez żadnych skosów i świetnie wykorzystujący wszelkie przestrzenie.
Na piętrze, 3 z 4 pokoi posiadają własne garderoby. Jeden pokój oprócz tego posiada własną łazienkę. Oprócz tych pomieszczeń znajduje się także wspólna łazienka i pralnia.
Po obu stronach domu znajdują się dodatkowo wygodne dwa tarasy z wyjściem z piętra.
Parter stanowi bardzo wygodną przestrzeń dzienną ze sporym salonem z kuchnią, wiatrołapem, gabinetem, łazienką, a także z przejściem do sporego garażu dwustanowiskowego oraz kotłowni.
Wyjście na taras i ogród na parterze znajduje się od strony południowej.
STANDARD WYKOŃCZENIA
Co warte adnotacji, dom został wybudowany pierwotnie nie na odsprzedaż. Zastosowane materiały charakteryzują się wysoką jakością, gdyż dom był budowany dla siebie. Sprzedawany jest przez osobę prywatną, która zmieniła plany zamieszkania.
Jest to nowoczesna bryła z dachem płaskim.
Ściany zewnętrzne z cegły Porotherm gr. 25 cm + styropian 20 cm.
Ściana rozdzielająca lokale (domy) wykonana z akustycznej Porotherm 25 cm.
Stropodach pokryty papą.
Dom wyposażony w szereg potrzebnych izolacji i zabezpieczeń.
Wnętrzne domu jest do całkowitego wykończenia łącznie z tynkami i instalacjami, co powoduje wygodę w realizacji wybranego i wymarzonego projektu wnętrz, który jest uzależniony od preferowanego rozkładu podejść instalacji i rozmieszczenia sprzętu domowego.
Do domu doprowadzono prąd, wodę z wodociągu, kanalizację oraz gaz.
LOKALIZACJA - komfort, zieleń i doskonała komunikacja!
Dom położony jest przy ulicy Bursztynowej na Umultowie, w jednej z najbardziej cenionych części Poznania, łączącej spokój zielonych przedmieść z wygodnym dostępem do centrum miasta.
W bliskim sąsiedztwie znajdują się liczne tereny rekreacyjne i spacerowe, w tym malownicze nadwarciańskie ścieżki rowerowe oraz tereny zielone wzdłuż rzeki Warty, idealne dla osób ceniących aktywny wypoczynek na świeżym powietrzu.
Okolica sprzyja rodzinom - w niewielkiej odległości dostępne są żłobki, przedszkola oraz szkoły podstawowe, a także bogata infrastruktura handlowo-usługowa. W pobliżu znajdują się również placówki medyczne, sklepy oraz przystanki komunikacji miejskiej, co zapewnia pełen komfort codziennego życia.
Dzięki dogodnemu położeniu i dobrze rozwiniętej sieci dróg dojazdowych, dotarcie w kierunku centrum Poznania jest bardzo sprawne zarówno samochodem, jak i transportem publicznym.
Jednocześnie, lokalizacja przy ul. Bursztynowej gwarantuje ciszę i prywatność, z dala od miejskiego zgiełku.
To miejsce, które łączy w sobie bliskość natury, wygodę i świetną komunikację - idealne dla osób poszukujących harmonii pomiędzy spokojem a miejskim stylem życia.
STAN PRAWNY
Stan prawny nieruchomości jest uregulowany. Sprzedaż następuje w drodze sprzedaży lokalu mieszkalnego z udziałem w gruncie i z wyłącznym prawem do korzystania z określonej części działki wraz z dojazdem. Jest to standardowe rozwiązanie przy tego typu nieruchomościach.
Polecamy i zapraszamy na prezentację!
Kontakt:
Maciej Gawryluk
Biuro nieruchomości ASTONS
tel: 604-380-020
e-mail: maciej.gawryluk@astons.pl
www.astons.pl
DODATKOWE INFORMACJE:
Typ zabudowy: 1/2 bliźniaka
Typ własności: własność
Stan domu: surowy zamknięty
Materiał budowlany: cegła
Technologia wykonania: murowana
Elewacja: tynk
Standard: bardzo dobry
Typ podłogi: beton
Typ ścian: inny
Rodzaj okien: PCV
Typ dachu: płaski
Garaż: w bryle
Łącze internetowe: nie
Powierzchnia salonu: 26,1
Liczba sypialni: 4
Liczba pokoi: 6
Rok budowy: 2025
Kanalizacja: miejska
Ogrzewanie: gazowe
Prąd: jest
Gaz: jest
Woda: wodociąg
Kominek: nie
Piwnica: nie
Poddasze: nie
Na biuro: nie
Osiedle zamknięte: nie
Typ balkonu: duży, jest, taras
Typ kuchni: otwarta
Domofon: nie
Ochrona: nie
Klimatyzacja: nie
Kształt działki: nieregularny
Długość działki: 27
Szerokość działki: 22
Typ drogi: kostka
Typ ogrodzenia: siatka
Alarm: nie
DANE KONTAKTOWE:
Maciej Gawryluk
604-380-020
maciej.gawryluk@astons.pl
Przedstawione dane mają charakter informacyjny i nie stanowią oferty w rozumieniu przepisów Kodeksu cywilnego.
SERDECZNIE ZAPRASZAMY DO KONTAKTU Z NASZYM BIUREM NIERUCHOMOŚCI.
WSZYSTKIE TRANSAKCJE PRZEPROWADZANE PRZY UDZIALE NASZEGO BIURA NADZOROWANE SĄ PRZEZ LICENCJONOWANEGO POŚREDNIKA I JEDNOCZEŚNIE PRAWNIKA. BIURO ASTONS NIERUCHOMOŚCI JEST UBEZPIECZONE OD ODPOWIEDZIALNOŚCI CYWILNEJ ZA WYKONYWANE CZYNNOŚCI POŚREDNICTWA. NIEODPŁATNIE POMAGAMY W WYBORZE NAJKORZYSTNIEJSZEGO FINANSOWANIA KREDYTOWEGO.
ŚWIADCZYMY PROFESJONALNE USŁUGI W ZAKRESIE POŚREDNICTWA PRZY SPRZEDAŻY, WYNAJMIE, JAK I KUPNIE NIERUCHOMOŚCI GŁÓWNIE NA TERENIE POZNANIA I OKOLIC.
WWW.ASTONS.PL



