Rzeszów/ podkarpackie
Ogłoszenie dodane: 15 godzin temu
Z przyjemnością prezentuję Państwu komfortowe, nowocześnie wykończone mieszkanie o powierzchni całkowitej 57,34 m², zlokalizowane w spokojnej i dobrze skomunikowanej części Rzeszowa. Mieszkanie zostało urządzone w wysokim standardzie, z dbałością o funkcjonalność i estetykę. Idealne dla osób ceniących wygodę, nowoczesne rozwiązania oraz komfort życia.
Największe zalety mieszkania:
✔ Wysoki standard wykończenia,
✔ Nowoczesna zabudowa kuchenna oraz wysokiej jakości sprzęty AGD,
✔ Ogrzewanie podłogowe w całym mieszkaniu, klimatyzacja,
✔ Spokojna okolica - wokół drzewa, łąki, zabudowa jednorodzinna,
✔ Miejsce w garażu oraz komórka lok. w cenie najmu,
✔ Plac zabaw bezpośrednio przy budynku.
Mieszkanie, do którego możesz wejść i od razu komfortowo zamieszkać - bez dodatkowych kosztów i stresu. Znajduje się w cichej, zielonej okolicy, otoczonej drzewami. To idealna przestrzeń dla osób, które chcą uciec od miejskiego zgiełku, ale jednocześnie mieć szybki dostęp do centrum.
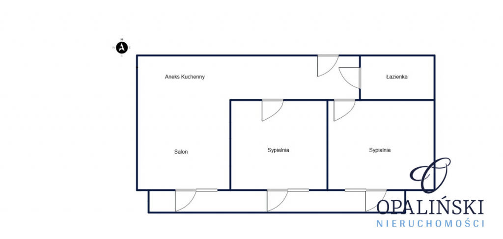
Rozkład mieszkania:
➜ Przedpokój,
➜ Salon z aneksem kuchennym,
➜ 2 sypialnie,
➜ Łazienka z prysznicem,
➜ Balkon.
Dodatkowe udogodnienia:
✱ Miejsce postojowe w garażu podziemnym w cenie,
✱ Komórka lokatorska,
✱ Dodatkowo ogólnodostępne miejsca parkingowe,
✱ Dostęp do internetu - gotowy do użytku,
✱ Telewizor w mieszkaniu
✱ Mieszkanie w pełni przygotowane do zamieszkania bez dodatkowych inwest.
Istnieje możliwość wynajmu mieszkania również dla pracowników firm - komfortowe warunki i funkcjonalny układ sprawdzą się idealnie przy najmie pracowniczym.
Lokalizacja:
✱ Restauracja McDonald’s - 400 m,
✱ Stacja Paliw BP - 450 m,
✱ Szkoła Podstawowa nr. 6 - 3 minuty samochodem,
✱ Delikatesy Centrum - 7 minut samochodem,
✱ Sklep Biedronka - 9 minut samochodem,
✱ Kościół - 6 minut samochodem,
✱ Przystanek PKP Rzeszów Pobitno - 5 minut samochodem.
Całkowity koszt wynajmu: 2700 zł + ok. 380 zł czynsz + media (prąd i gaz).
Kaucja: 2700 zł
*****
Najem nieruchomości to ważna decyzja, dlatego wychodzimy naprzeciw Waszym potrzebom i stawiamy czoła wszystkim wyzwaniom. Opaliński Nieruchomości to najlepsze biuro nieruchomości w województwie Podkarpackim według serwisu otodom.
Gwarancja jakości i bezpieczeństwa.
Profesjonalna i kompleksowa obsługa transakcji na każdym etapie.
Nasi eksperci bezpłatnie przygotują dla Was najkorzystniejszą ofertę ubezpieczeniową.
__________
Niniejsze materiały stanowią tajemnicę przedsiębiorstwa Opaliński Nieruchomości lub podmiotów współpracujących w rozumieniu ustawy z dnia 16 kwietnia 1993 r. o zwalczaniu nieuczciwej konkurencji (Dz. U. z 2003 r., Nr 153, poz. 1503 z późn. zm.).
Pomimo iż Doradcy Opaliński Nieruchomości przykładają szczególną staranność do rzetelnego prezentowania informacji o nieruchomości, nie zawsze jest możliwa weryfikacja wszystkich danych przekazanych od osób trzecich. Niniejsza prezentacja oferty nie jest ofertą w rozumieniu Kodeksu Cywilnego i ma charakter wyłącznie informacyjny."



