Gdańsk/ pomorskie
Ogłoszenie dodane: 1 godzinę temu
Prezentuję lokal do wynajęcia w bardzo dobrej lokalizacji Gdańska - Dolne Miasto, ul. Łąkowa! Lokal jest w stanie do kapitalnego remontu, prezentowane wizualizacje są jedynie możliwą opcją aranżacji wnętrza i nie odpowiada aktualnemu stanu technicznemu.
Nieruchomość:
- powierzchnia:
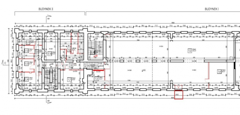
a) sala główna: 275m2; + 7 pomieszczeń + łazienki = 476,55m2
- do nieruchomości jest osobne wejście;
- lokal można zaaranżować według własnych potrzeb;
- miejsca parkingowe (płatne) są obok oraz na ulicy Łąkowej;
- są duże okna, które dają dużo dziennego światła;
- do nieruchomości doprowadzone są instalacje: wodna, elektryczna i kanalizacyjna - wszystkie są do wymiany;
Opłaty:
Czynsz: 16 680 zł netto + VAT = 20 515 zł (brutto) + opłaty za media według zużycia.
Dla kogo?:
Zaaranżowaliśmy lokal pod strefę coworkingową z klubo-kawiarnią. Za dnia miejsce do pracy - z możliwością aranżacji miejsca pod salę konferencyjną i miejscem do pracy i wypicia kawy, popołudniem miejsce może przyciągnąć młode osoby do wspólnego spędzania czasu.
Oczywiście zapraszamy do kontaktu wszystkie firmy, które chciałyby zobaczyć nieruchomość.
Dysponuję zdjęciami w stanie rzeczywistym.
W pobliżu:
Znajdują się bloki mieszkalne, supermarket, powstają nowe inwestycje, a także są lokalne sklepiki. Do przystanku tramwajowego mamy około 10 minut pieszo.
Do Starego Miasta dojdziemy spacerem w około 15 minut- ogromna zaleta tej lokalizacji.
Serdecznie zapraszam do zapoznania się z ofertą! Mamy także obok lokal o powierzchni około 209m2 lub można wynająć dwa lokale.
Kontakt w sprawie oferty:
Biuro Nieruchomości CASTLE
Katarzyna Kacperska
Gdańsk, ul. Kartuska 69
Powyższy opis ma charakter informacyjny i nie stanowi oferty handlowej w rozumieniu Kodeksu Cywilnego. Dane mogą ulec zmianie. Biuro Nieruchomości CASTLE zapewnia bezpieczeństwo transakcji oraz profesjonalną obsługę do momentu przekazania nieruchomości nowym właścicielom. Pomagamy w doborze kredytu.

