Gdańsk/ pomorskie
Ogłoszenie dodane: wczoraj 09:30:03
Prezentuję lokal do wynajęcia w bardzo dobrej lokalizacji Gdańska - Dolne Miasto, ul. Łąkowa!
Lokal jest w stanie do kapitalnego remontu, prezentowane wizualizacje są jedynie możliwą opcją aranżacji wnętrza i nie odpowiada aktualnemu stanu technicznemu.
Nieruchomość:
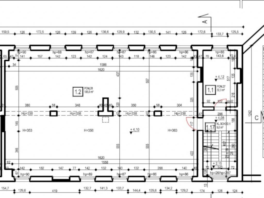
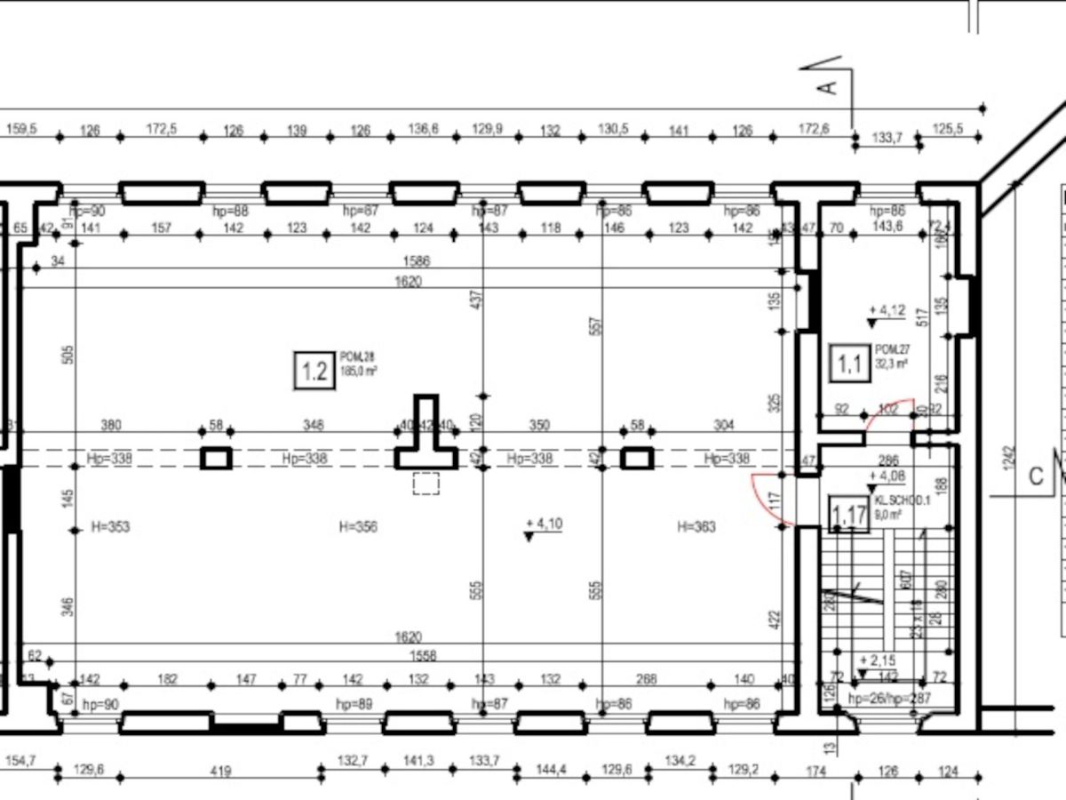
- powierzchnia:
a) sala główna: 185m2;
b) pomieszczenie: 15,2m2;
c) klatka schodowa: 9m2;
- do nieruchomości jest osobne wejście;
- lokal można zaaranżować według własnych potrzeb;
- miejsca parkingowe (płatne) są obok oraz na ulicy Łąkowej;
- są duże okna, które dają dużo dziennego światła;
- do nieruchomości doprowadzone są instalacje: wodna, elektryczna i kanalizacyjna - wszystkie są do wymiany;
Opłaty:
Czynsz: 7322 zł netto + VAT = 9006 zł + opłaty za media według zużycia.
Dla kogo?:
Zaaranżowaliśmy lokal pod siłownię, ponieważ klimat powojennej fabryki broni idealnie pasuje, aby stworzyć siłownię w takim miejscu, zachowując oryginalny klimat.
Oczywiście zapraszamy do kontaktu wszystkie firmy, które chciałyby zobaczyć nieruchomość, a niekoniecznie reprezentują branżę fitness.
Dysponuję zdjęciami w stanie rzeczywistym.
W pobliżu:
Znajdują się bloki mieszkalne, supermarket, powstają nowe inwestycje, a także są lokalne sklepiki. Do przystanku tramwajowego mamy około 10 minut pieszo.
Do Starego Miasta dojdziemy spacerem w około 15 minut- ogromna zaleta tej lokalizacji.
Serdecznie zapraszam do zapoznania się z ofertą! Mamy także obok lokal o powierzchni około 468m2 lub można wynająć dwa lokale.
Kontakt w sprawie oferty:
Biuro Nieruchomości CASTLE
Katarzyna Kacperska
Gdańsk, ul. Kartuska 69
Powyższy opis ma charakter informacyjny i nie stanowi oferty handlowej w rozumieniu Kodeksu Cywilnego. Dane mogą ulec zmianie. Biuro Nieruchomości CASTLE zapewnia bezpieczeństwo transakcji oraz profesjonalną obsługę do momentu przekazania nieruchomości nowym właścicielom. Pomagamy w doborze kredytu.

