Toruń/ kujawsko-pomorskie
Ogłoszenie dodane: 06.08.2025
Wydajność: 15–20 m³/h
Tryb pracy: półautomatyczny (opcjonalnie – w pełni automatyczny)
Opis skrócony
GPB-18 to nowoczesna, kompaktowa instalacja do produkcji betonu towarowego i zapraw. Zapewnia wysoką precyzję dozowania, szybkie mieszanie oraz stabilną jakość gotowego produktu.
Podstawowe parametry techniczne:
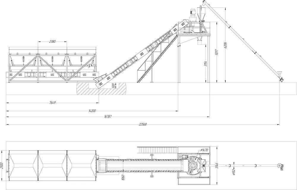
Mieszarka: RS-800 (przymusowa, ustawiona na estakadzie 4 m)
Objętość mieszanki na cykl: 0,45–0,5 m³
Czas cyklu: do 60 sekund
Wydajność robocza: 15–20 m³/h
Zasobniki kruszyw: 3 × 8 m³
Blok dozujący (cement/woda/dodatki): 150 kg / 75 l / 10 l
Transport cementu: przenośnik ślimakowy z silosu (22–40 t)
System dozowania: tensometry "CAS", wibrator na dozowniku cementu
Pneumatyka: "Camozzi", zawory pneumatyczne
System transportu: przenośnik taśmowy + dozujący
Kompresor: tłokowy
Całkowita moc zainstalowana: 40 kW
Masa całkowita: ≤10 000 kg
Wymiary zabudowy:
Wysokość: 6206 mm
Szerokość: 3146 mm
Długość bez ślimaka: 16 787 mm
Długość ze ślimakiem: 22 568 mm
Zalety GPB-18:
Półautomatyczny system z możliwością pełnej automatyzacji
Dokładne dozowanie dzięki tensometrom i sterowaniu pneumatycznemu
Niezawodna pneumatyka firmy "Camozzi" (Włochy)
Krótki czas mieszania – do 60 s
Opcja realizacji projektu „pod klucz” wraz z pulpitem zdalnego sterowania
GPB-18 to idealne rozwiązanie dla średnich i dużych placów budowy, zakładów prefabrykacji oraz produkcji betonu towarowego.
Potrzebujesz dokumentacji technicznej, rysunków lub oferty handlowej?
— Skontaktuj się z nami – przygotujemy rozwiązanie dopasowane do Twoich potrzeb.



