Poznań/ wielkopolskie
Ogłoszenie dodane: 17 godzin temu
Poszukujesz mieszkanie? Zobacz - jednopokojowe, kawalerka, w świetnej lokalizacji na Naramowicach, Idealne miejsce do życia. W najbliższej okolicy inwestycji, znajdują się atrakcyjne tereny rekreacyjne oraz liczne sklepy, restauracje, urocze knajpki i punkty usługowe.
Kupujący zwolniony od opłaty prowizji agencyjnej.
Kupujący zwolniony jest z 2% podatku od czynności cywilno-prawnych (PCC).
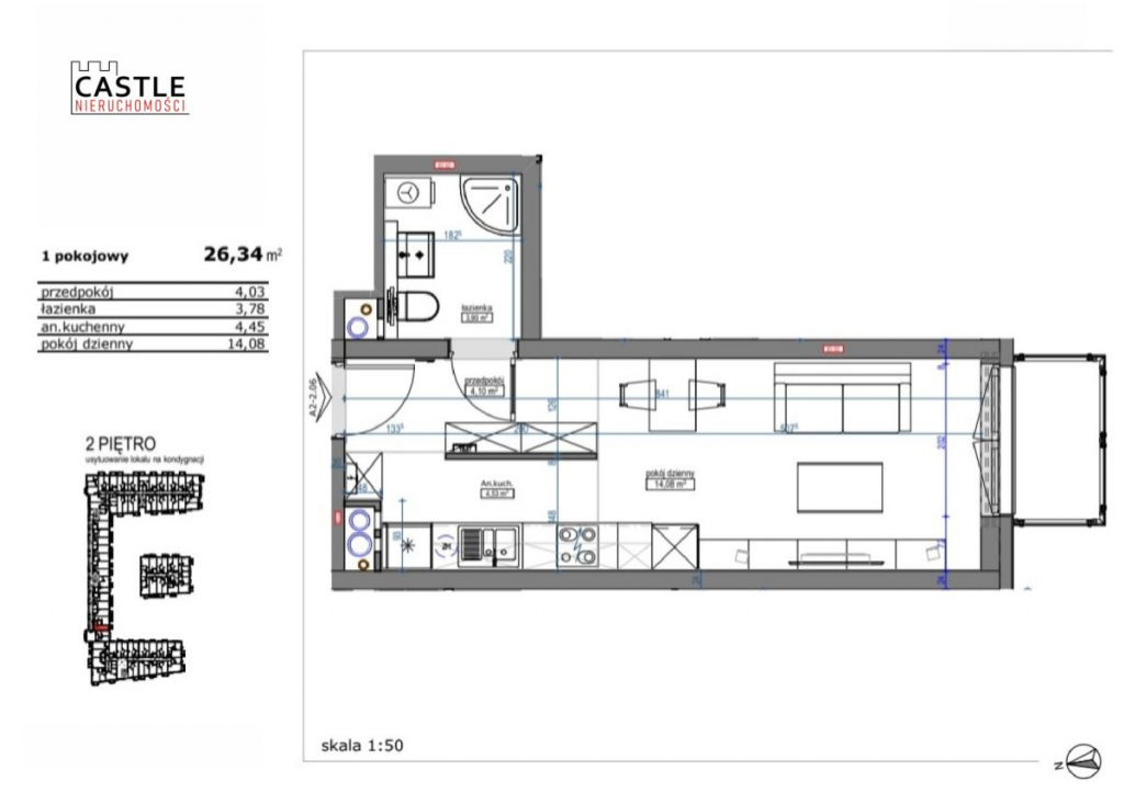
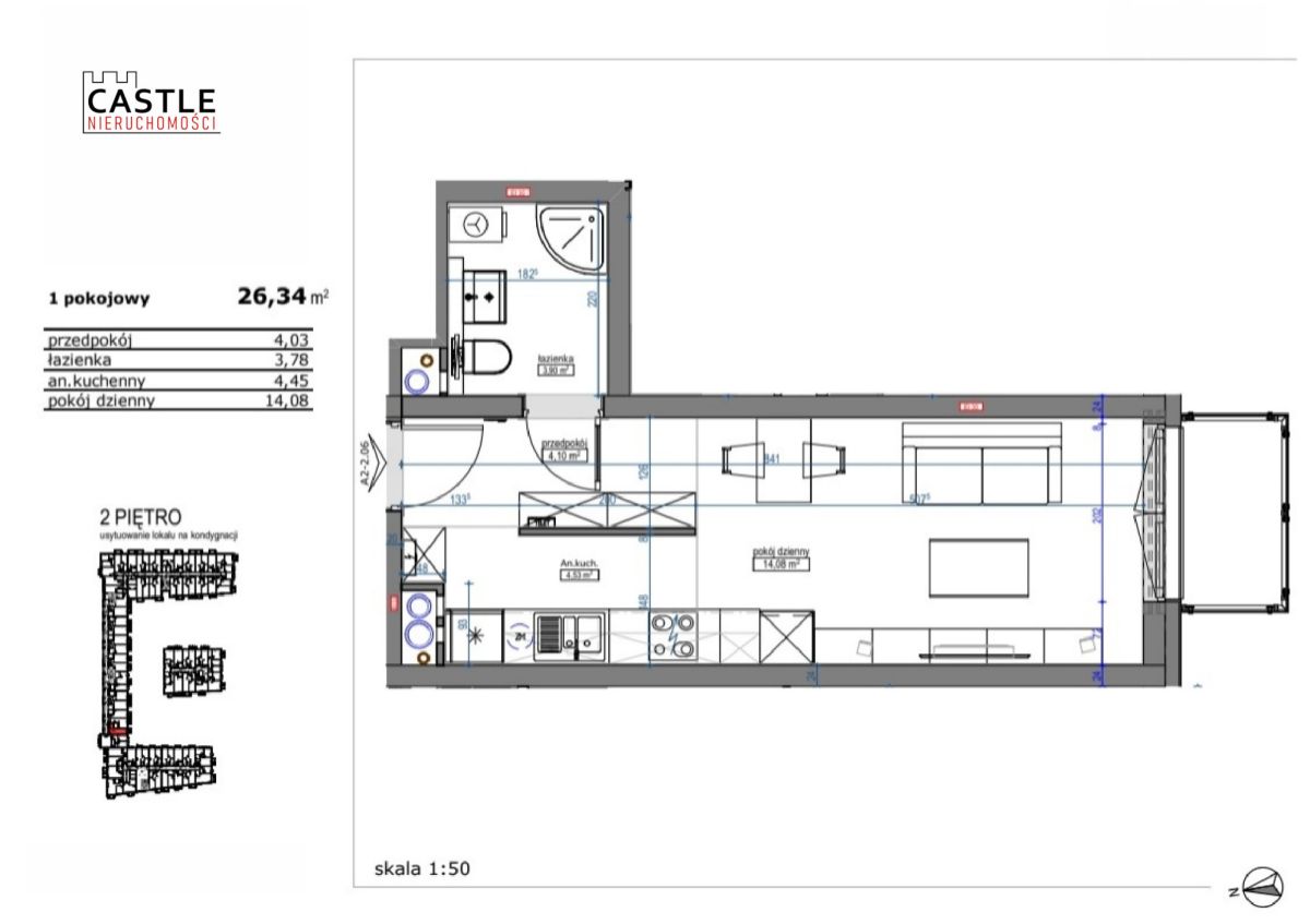
Mieszkanie znajduje się na pierwszym pentrze .
Powierzchnia całkowita 26.34 m2:
- pokój dzienny 14.08 m2.,
- aneks kuchenny 4.48 m2,
-przedpokój 4.03 m2,
-łazienka 3.78 m2,
Atuty:
- Elewacje budynków to połączenie klasyki z nowoczesnością. Drewno, szkło i elegancka paleta barw.
- Dzięki kaskadowemu układowi pięter, wszystkie mieszkania będą jasne i odpowiednio doświetlone.
- Dla komfortu mieszkańców, w inwestycji zainstalowanych zostanie aż 7 wind!
- W najbliższej okolicy inwestycji, znajdują się atrakcyjne tereny rekreacyjne. Spacerując na wschód, w kilka minut dotrzesz do malowniczych zakoli Warty, by spacerować ścieżkami wśród dzikiej przyrody. Gdy wybierzesz się na zachód, po kilku minutach dotrzesz do Rezerwatu Żurawiniec.
- 2 poziomowy garaż podziemny, zapewniający ponad 350 miejsc postojowych oraz 50 komórek lokatorskich, 368 stojaków na rowery .
- Przystanek tramwajowy 250 metrów od inwestycji
- Przystanek autobusowy 100 metrów od inwestycji
To miejsce stworzone zarówno dla rodzin z dziećmi, singli czy seniorów poszukujących osobistej oazy komfortu, jak i inwestorów pragnących uchronić swój kapitał przed inflacją.
Planowany odbiór mieszkań w stanie developerskim 4 kwartał 2025 roku
Bezpłatnie pomożemy również w załatwieniu wszelkich formalności związanych z bezpiecznym zakupem, jak również w wyborze najkorzystniejszego finansowania porównując przez naszego eksperta oferty wszystkich banków udzielających kredytów hipotecznych.
Zapraszam na prezentację.
W trosce o najwyższą jakość obsługi oraz bezpieczeństwo Klientów przed prezentacją wymagana jest wizyta w biurze celem podpisania dokumentów dotyczących prezentacji nieruchomości.
Posiadam w swojej ofercie także inne mieszkania z tej inwestycji, zapraszam do kontaktu. Aleksander Ozerov 720 802 300
Mówię po ukraińsku i rosyjsku.



