Poznań/ wielkopolskie
Ogłoszenie dodane: wczoraj 09:41:21
Castle Nieruchomości z przyjemnością przedstawia ofertę sprzedaży wyjątkowego mieszkania o powierzchni 36.71 m² w promocyjnej cenie, zlokalizowanego na poznańskich Podolanach. To idealne miejsce dla osób ceniących sobie komfort i bliskość natury.
Mieszkanie jest idealne jako inwestycja na „początek” dla singla/singelki albo pod wynajem długoterminowy.
Nowa Inwestycja znajduje się w pobliżu terenów zielonych, w tym Jeziora Rusałka, Fortu VI i Jeziora Strzeszyńskiego, co umożliwi mieszkańcom aktywny wypoczynek i spędzanie czasu na świeżym powietrzu. Inwestycja ta jest skierowana do różnych grup klientów, w tym inwestorów, singli oraz rodzin z dziećmi. Dzięki dogodnej lokalizacji oraz różnorodnej ofercie mieszkań, jest doskonałym miejscem do zamieszkania dla osób poszukujących nowoczesnego i wygodnego mieszkania w otoczeniu zieleni.
Sprzedaż całej inwestycji, skontaktuj się w sprawie otrzymania kompleksowej oferty mieszkań spełniającej Twoje oczekiwania!
Atuty:
Kupujący zwolniony od opłaty prowizji agencyjnej.
Kupujący zwolniony jest z 2% podatku od czynności cywilno-prawnych (PCC).
Niski czynsz utrzymania nieruchomości
Nie wahaj się, zadzwoń 720 802 300 i umów się na prezentację zanim ubiegną Cię inni.
Mówię po ukraińsku i rosyjsku zapraszam do kontaktu pomogę dobrać idealne mieszkanie do Twoich oczekiwań.
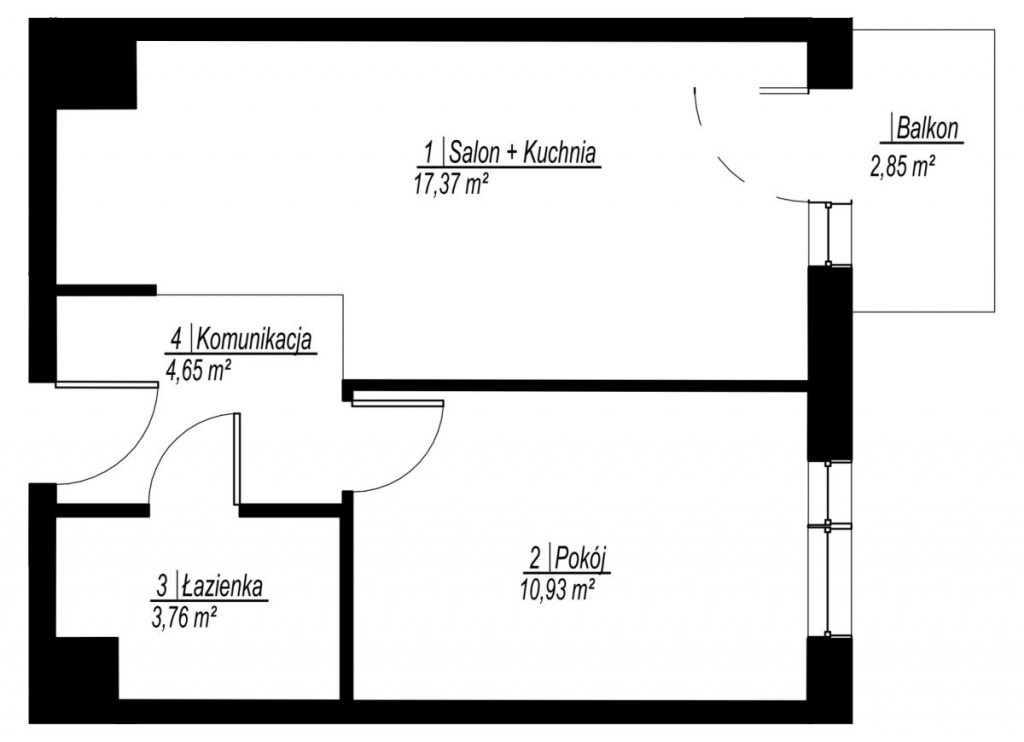
MIESZKANIE: dwupokojowe, o powierzchnie 36.71 m2.
salon z aneksem kuchennym 17.37 m2
pokój 10.93 m2
komunikacja 4.65 m2
łazienka 3.76 m2
Położenie Wschód
Atuty:
planowany termin oddania do użytku w stanie deweloperskim IV kwartał 2024 r.
do centrum, 7.3 km
blisko komunikacji miejskiej, autobus 230 m
miejsca postojowe naziemne i podziemne.,
domofon, drzwi antywłamaniowe, monitoring,
CO miejskie
funkcjonalna infrastruktura dzielnicy.
Dodatkowo do mieszkania istnieje możliwość zakupu komórki lokatorskiej (3500 zł/m2) oraz miejsca postojowego pojedynczego: 30 000 zł - 35 000 zł. Rodzinnego: 40 000 zł - 50 000 zł.
POSIADMY W OFERCIE SETKI NIEPUBLIKOWANYCH MIESZKAŃ.
ZADZWOŃ LUB NAPISZ, WYŚLĘ PEŁNĄ OFERTĘ MIESZKAŃ SPEŁNIAJĄCYCH TWOJE OCZEKIWANIA.



