Poznań/ wielkopolskie
Ogłoszenie dodane: 27.08.2025
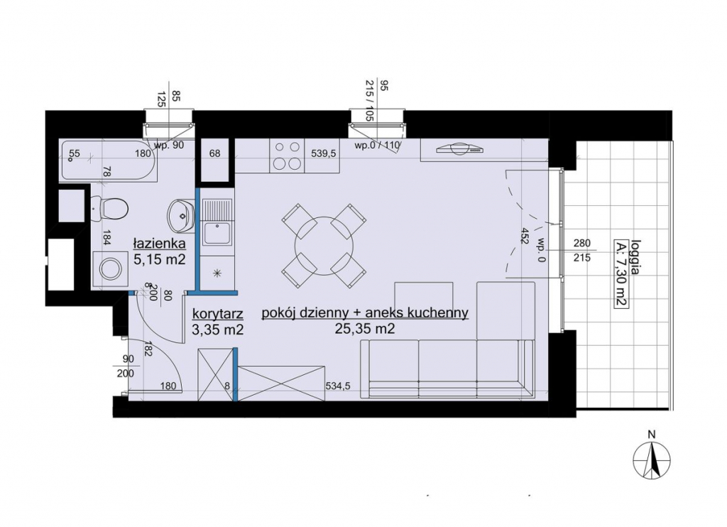
Oferuję na sprzedaż atrakcyjną kawalerkę o powierzchni 33.85 m² oraz loggia o powierzchnię 7.30 m2 położoną na 9 piętrze w 11-piętrowym budynku z windą. Mieszkanie jest idealne jako inwestycja pod wynajem krótkoterminowy lub długoterminowy, dzięki swojej doskonałej lokalizacji.
Mieszkania na sprzedaż w bliskim sąsiedztwie centrum Poznania. Nowoczesne, pełne energii i charakteru miejsce dostępne na rynku pierwotnym nieruchomości. Mieszkania z duszą, przystosowane do Twoich potrzeb, oferujące standard, jakiego oczekujesz. Położone w pięknej, zielonej dzielnicy na Winogradach, skąd niedaleko jest do centrum Poznania.
Kupujący zwolniony jest z 2% podatku od czynności cywilno-prawnych (PCC)
0% prowizji biurowej
Niski koszt utrzymania.
Nie wahaj się, zadzwoń 720 802 300 i umów się na prezentację zanim ubiegną Cię inni.
Mówię po ukraińsku i rosyjsku zapraszam do kontaktu pomogę dobrać idealne mieszkanie do Twoich oczekiwań. Oddanie do użytku IV kwartał 2025 roku.
Powierzchnia całkowita 43.78 m2:,
Salon z aneksem kuchennym 22.90 m2
Pokój 12.02 m2
Hol 4.62 m2
łazienka 4.24 m2
loggia 9.91 m2.
mieszkanie znajduje się na dziewiątym piętrze.
Ekspozycja: wschód.
Zalety:
• Komunikacja
• Udogodnienia dla najmłodszych
• Istnieje możliwość zakupu komórki lokatorskiej
• Miejsce parkingowe (Deweloper przewidział miejsca postojowe naziemne oraz dwupoziomową halę garażową)
• Infrastruktura drogowa
• Bezpieczeństwo okolicy
• Bliskość terenów rekreacyjnych
Lokalizacja: Winogrady, ul. Hawelańska
3,2 km do centrum
dojazd do centrum: 13 min samochodem
Przystanek autobusowy (274 m, 4 minuty spacerem)
Przystanek tramwajowy (265 m, 4 minuty spacerem)
Szkoła Podstawowa (826 m, 11 minut spacerem)
Przedszkole (738 m, 10 minut spacerem)
Żłobek (893 m, 12 minut spacerem)
Posiadam w swojej ofercie także inne mieszkania z tej inwestycji.



