Wrocław/ dolnośląskie
Ogłoszenie dodane: 15.03.2026
Mieszkanie GOTOWE oddane do użytkowania w stanie deweloperskim o ciekawym układzie!Oferta od dewelopera, bez PCC, bez prowizji!!!
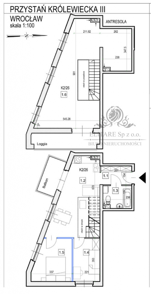
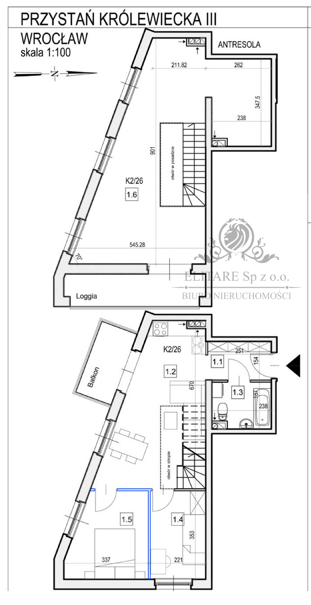
Wrocław Fabryczna Maślice– wyjątkowe duże mieszanie, jedyne takie na tej inwestycji – mieszkanie 4 pokojowe z antresolą z balkonem i loggią! Blok z windą z poziomu garaży. Budynek jest gotowy oddany do użytku, zakup umową deweloperską.
OPIS NIERUCHOMOŚCI
Mieszkanie położone jest na 2 piętrze w 2 piętrowym bloku z windą. Powierzchnia mieszkania to 83,75 m2, na którą składa się pokój dzienny z kuchnią w aneksie o pow. 21,95 m2, z salonu wyjście na balkon o powierzchni 4,5 m2. W mieszkaniu na pierwszym poziomie znajdują się dwa oddzielne pokoje o powierzchniach 10,26 m2 i 7.63 m2. Dodatkowo na tym poziomie znajduje się łazienka o powierzchni 4,13 m2 oraz przedpokój z miejscem na dużą szafę w zabudowie, a schody zaprowadzą nas na drugi poziom mieszkania – antresole o powierzchni 35,92 m2. Na antresoli znajduje się wyjście na drugi zabudowany balkon o powierzchni 7,16 m2 (loggia).
Ekspozycja okien wschodnia i południowa, mieszkanie dwustronne narożne. Ogrzewanie centralne , gazowe.
Dodatkowo do mieszkania dokupić należy (obowiązkowo):
- miejsce w garażu podziemnym cena 34.100 zł
Mieszkanie realizowane w stanie deweloperskim do samodzielnego wykończenia.
OSIEDLE
Kameralna 2 piętrowa zabudowa z estetycznie wykonaną elegancko wyglądającą elewacją. W inwestycji znajduje się garaż podziemny z miejscami postojowymi, a każdy lokal w budynku posiada balkon, taras lub przestronny ogródek. Układy mieszkań zostały zaprojektowane w sposób ergonomiczny i przemyślany. Styl, komfort oraz jakość wykonania sprawiły, że pierwszy i kolejne etapy tej inwestycji stały się docenionym miejscem zarówno na inwestycje we własne mieszkanie lub mieszkanie do wynajmu.
KOMUNIKACJA
Lokalizacja to wrocławskie Maślice przy ulicy Królewieckiej. Jest to jeden z najbardziej zielonych terenów Wrocławia, który gwarantuje stały kontakt z naturą, W okolicy Przystani Królewieckiej są trasy biegowe i rowerowe, kąpielisko i miejsce do grillowania. W najbliższej okolicy znajduje się infrastruktura społeczna, Biedronka 5 minut spacerem CH N- Park Maślicka oraz przystanek autobusowy w odległości 2 minut spacerem od inwestycji.
Zapraszam do kontaktu w celu przygotowania oferty / umówienia się na prezentacje – Kupujący nie płaci prowizji.
Jeżeli ten apartament zdobył Twoje serce, zapraszam do kontaktu i na bezpłatną prezentację inwestycji.
Zapewniam
- profesjonalną obsługę, gwarantowaną wieloletnim doświadczeniem w branży nieruchomości-możliwość bezpłatnej rezerwacji mieszkania,
- kompleksowe wsparcie na każdym etapie transakcji
- gwarancję bezpiecznego zakupu
- oszczędność czasu
-pomoc w uzyskaniu kredytu na najlepszych warunkach
- kompleksowe doradztwo
Ania Kamuda- Doradca klienta
tel. 535 422 188
anna.kamuda@elitare.pl
Nr oferty 05_ETAP3_K2 26/AK
Zamieszczone na naszych stronach informacje nie stanowią oferty w rozumieniu Kodeksu Cywilnego, a dane w nich zawarte mają jedynie charakter informacyjny.
OFERTA CENOWA AKTUALNA NA DZIEŃ 14-03-2026 I OBOWIĄZUJE DO DNIA 14-03-2026



