Wrocław, Krzyki
Ogłoszenie dodane: 6 godzin temu
Osiedle realizowane we Wrocławskiej dzielnicy Krzyki, na terenach obejmujących historyczne zabudowania dawnego browaru E. Haasego- to świetnie skomunikowana lokalizacja zarówno z centrum Wrocławia, jak i obwodnicą śródmiejską, a największym walorem jest bliskość terenów rekreacyjnych oraz komunikacja miejska tramwajowa i autobusowa.
Z myślą o potrzebach przyszłych mieszkańców zróżnicowaliśmy zabudowę - powstają tu wielkomiejskie, wysokie budynki, nieco niższa zabudowa osiedlowa ze skwerami i parkami kieszeniowymi oraz położona najbliżej rzeki strefa kameralna z niską zabudową. Osiedle w sposób naturalny połączy bliskość Starego Miasta z możliwością oddechu od miejskiego zgiełku. Zastosujemy przyjazne środowisku rozwiązania ekologiczne oraz zadbamy o walory estetyczne wykorzystując materiały wysokiej jakości. Do użytku mieszkańców oddamy Strefę Fitness oraz Kącik Malucha. Każde mieszkanie bez dodatkowych opłat wyposażymy w system Smart House firmy Keemple pozwalający na efektywne gospodarowanie energią oraz kontrolę jej zużycia.
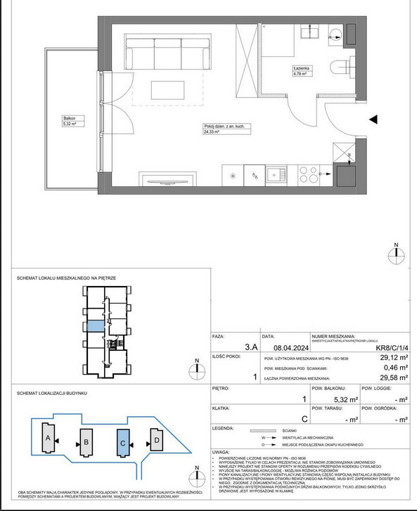
Prezentowane Mieszkanie ma powierzchnię 28,18m2 i znajduje się na pierwszym piętrze w 5 piętrowym budynku z windą, a jego główne cechy to - salon z aneksem kuchennym o powierzchni 24,33m2 z wyjściem na balkon o powierzchni 5,32m2, oraz łazienka o powierzchni 4,79m2.
Na osiedlu zapewnimy możliwość instalacji indywidualnych ładowarek przy wybranych miejscach parkingowych. Zamontowane będą też ogólnodostępne stacje ładowania samochodów elektrycznych, a zastosowanie ekologicznych takich jak panele fotowoltaiczne i oświetlenie LED pozwolą obniżyć zużycie energii elektrycznej w częściach wspólnych budynków. Do budowy chodników wykorzystamy kostkę betonową posiadającą właściwości antysmogowe, a jasną elewację, malowaną z użyciem farby antysmogowej, wykończymy efektowną płytką klinkierową. Na osiedlu powstaną pomieszczenia rowerownie wyposażone w stojaki lub wieszaki na rowery. Zainstalujemy trzyszybowe okna o wysokiej izolacyjności termicznej oraz nawiewniki z możliwością zastosowania filtra antysmogowego. Do każdego lokalu doprowadzimy instalację światłowodową oraz instalację telewizji naziemnej i satelitarnej. W mieszkaniach na parterze założymy przeciwsłoneczne rolety zewnętrzne sterowane elektrycznie.
Osiedle będzie chronione i monitorowane, a kontrolę dostępu zapewnią wideo-domofony. Wszystko to sprawi, że przyszli mieszkańcy będą czuli się tutaj komfortowo i bezpiecznie.
Termin realizacji inwestycji – I etap - 2026-05-30
-Cena brutto m. p. w garażu podziemnym: 30 000 -44 000 zł zakup do mieszkań 2 pokojowych i większych.
-Cena miejsca postojowego naziemnego -29 000 ( możliwość zakupu do mieszkań 2 pokojowych)
- Do mieszkań 2 pokojowych można kupić boksy w cenie 3500 za m2
- Do mieszkań 3 pokojowych można kupić komórki lokatorskie w cenie 4 500 za m2
Zapraszam do kontaktu w celu przygotowania oferty / umówienia się na prezentacje – Kupujący nie płaci prowizji.
Zapewniam
- profesjonalną obsługę, gwarantowaną wieloletnim doświadczeniem w branży nieruchomości-możliwość bezpłatnej rezerwacji apartamentu
- kompleksowe wsparcie na każdym etapie transakcji
- gwarancję bezpiecznego zakupu
- oszczędność czasu
-pomoc w uzyskaniu kredytu na najlepszych warunkach
- kompleksowe doradztwo
Ania Kamuda- Doradca klienta
tel. 535 422 188
anna.kamuda@elitare.pl
Nr oferty ROB/AKR /8/C/1/4/AK
Zamieszczone na naszych stronach informacje nie stanowią oferty w rozumieniu Kodeksu Cywilnego, a dane w nich zawarte mają jedynie charakter informacyjny.
OFERTA CENOWA AKTUALNA NA DZIEŃ 31.03.2026 I OBOWIĄZUJE DO DNIA 31.03.2026



