Wrocław/ dolnośląskie
Ogłoszenie dodane: 1 godzinę temu
Zapraszam do zakupu idealnego miejsca do życia we Wrocławiu- Stabłowice. Inwestycja składa się z trzech pięciokondygnacyjnych budynków ze wspólnym parkingiem podziemnym, oferujących łącznie 103 mieszkania. Znajdziesz tutaj różnorodne układy – od kompaktowych kawalerek, przez praktyczne dwupokojowe, aż po przestronne mieszkania trzypokojowe i czteropokojowe. Każde mieszkanie zostało zaprojektowane z myślą o maksymalnym komforcie i funkcjonalności, aby spełnić oczekiwania nawet najbardziej wymagających klientów.
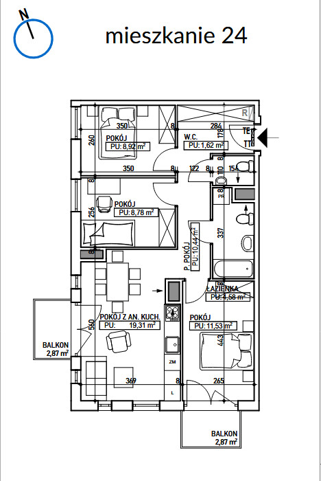
Prezentowane mieszkanie ma powierzchnię 65,18m2 i znajduje się na trzecim piętrze w pięciokondygnacyjnym budynku a jego główne cechy to- salon z aneksem kuchennym o powierzchni 19,31m2 z wyjściem na balkon o powierzchni 2,87m, sypialnia o powierzchni 11,53m2 z wyjściem na balkon o powierzchni 2,87,sypialnia o powierzchni 8,92m2, sypialnia o powierzchni 8,78m2 łazienka o powierzchni 4,68m2,wc o powierzchni 1,62m2 przedpokój powierzchni 10,44m2.
• W pobliżu – sklepy, usługi, szkoła, przedszkole, plac zabaw, ośrodek zdrowia
• W pobliżu przystanki autobusowe , 5 minut do stacji kolejowej -Wrocław Pracze
• W pobliżu tereny rekreacyjne oraz parki
Na terenie osiedla przewidziano nowoczesny plac zabaw, wyposażony w atrakcyjne zestawy urządzeń, który z pewnością ucieszy najmłodszych mieszkańców. Całość dopełniają estetyczne i oświetlone chodniki oraz alejki, zapewniające komfortowe poruszanie się po osiedlu o każdej porze dnia i nocy. Na ternie osiedla znajduje się rowerownia. W jednym z budynków zaplanowano lokal usługowy, który odpowie na potrzeby rosnącego osiedla i zapewni dostęp do podstawowych usług bez konieczności przemieszczania się do centrum miasta.- Cena miejsca postojowego w garażu podziemnym
-35 000- Cena miejsca postojowego dwustanowiskowego w garażu podziemnym
-50 000- Cena komórek lokatorskich – 6 000m2
Zapraszam do kontaktu w celu przygotowania oferty / umówienia się na prezentacje – Kupujący nie płaci prowizji.
Zapewniam
- profesjonalną obsługę, gwarantowaną wieloletnim doświadczeniem w branży nieruchomości-możliwość bezpłatnej rezerwacji mieszkania
- kompleksowe wsparcie na każdym etapie transakcji
- gwarancję bezpiecznego zakupu
- oszczędność czasu
-pomoc w uzyskaniu kredytu na najlepszych warunkach
- kompleksowe doradztwo
- pomoc w aranżacji mieszkania
Ania Kamuda- Doradca klienta
tel. 535 422 188
anna.kamuda@elitare.pl
Nr oferty WRB/JOD/B24/AK
Zamieszczone na naszych stronach informacje nie stanowią oferty w rozumieniu Kodeksu Cywilnego, a dane w nich zawarte mają jedynie charakter informacyjny.
OFERTA CENOWA AKTUALNA NA DZIEŃ 14-04-2026 I OBOWIĄZUJE DO DNIA 14-04-2026



