Wrocław/ dolnośląskie
Ogłoszenie dodane: 27.01.2026
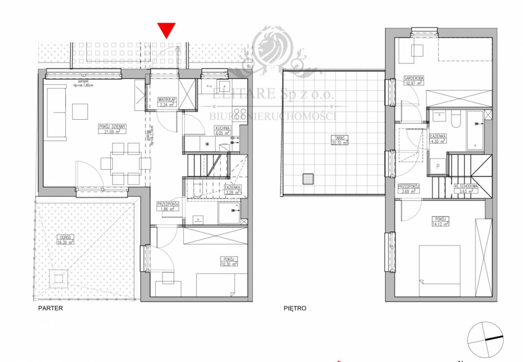
Mieszkanie atrialne, dwukondygnacyjne o powierzchni łącznej 81,53m2 + ogród 16,30m2 +taras 20,70m2. Wyjątkowo zaprojektowana przestrzeń mieszkalna dla tych z Państwa, którzy marzą o mieszkaniu w klimacie domu – kameralne sąsiedztwo, dwupoziomowe rozwiązania z podziałem na strefę dzienną i nocną, własny ogród i taras, miejsce postojowe i komórka. Idealne kompaktowa propozycja i wszystkie te składowe w jednej prezentowanej cenie ofertowej.
Mieszkanie zaprojektowany jest w wygodny, ergonomiczny sposób i posiada:
STREFĘ DZIENNĄ na parterze - układ otwartego salonu z jadalnią o powierzchni 21,09 z salonu wyjście na wewnętrzny ogród o pow. 16,30m2, mamy też oddzielną kuchnie o pow. 6,05m2 i osobną sypialnie/gabinet o pow. 10,30m2, na tym poziomie znajduje się też pierwsza łazienka z miejscem na prysznic, toaletę i umywalkę o pow. 3,28m2 i wiatrołap z miejscem na szafę w zabudowie, schodami żelbetowymi z korytarza wchodzimy na drugą kondygnacje.
STREFA NOCNA na piętrze to 2 oddzielne pokoje o pow. 14,12m2 i 10,97m2, z korytarza oraz mniejszego pokoju wyjście na taras o pow.20,70m2, na tym poziomie mamy też drugą łazienkę z miejscem na wannę, toaletę, umywalkę i pralkę o pow.4,30m2.
STANDARD WYKOŃCZENIA z głównych atutów podwyższonego standardu deweloperskiego pokreślić warto:
- w standardzie, rozwiązanie Smart House by Keemple - inteligentny system, który zwiększa poczucie bezpieczeństwa i pozwala na znaczące obniżenie kosztów eksploatacji.
- zamontowana instalacja klimatyzacji typu Multisplit z jednostką zewnętrzną na dachu budynku i jednostkami wewnętrznymi w wybranych pomieszczeniach,
- przygotowana instalacja do montażu elektrycznej maty grzewczej w łazience. Mata przekazywana przy odbiorze do indywidualnego montażu podczas wykańczania mieszkania,
-instalacja światłowodową doprowadzoną wprost do każdego lokalu, zapewniającą najszybszy możliwy dostęp do Internetu
-wysokiej jakości antywłamaniowe drzwi wejściowe, które nie tylko ładnie wyglądają i zabezpieczają przed włamaniem, ale też posiadają podwyższoną izolację akustyczną
- pomieszczenia mają wysokości 2,8 m co daje odczucie większej przestrzeni oraz zapewnia lepszą cyrkulację powietrza,
-zewnętrzne rolety przeciwsłoneczne w oknach na obydwóch poziomach
-ogródek wyposażony w punkt poboru wody ułatwiający podlewanie
- i wiele innych zalet…
Mieszkanie atrialne z własnym ogrodem, tarasem, miejscem postojowym, schowkiem na np. rower z nowoczesnym rozwiązaniami sięgającym w przyszłość realizowane w ramach osiedla z niską zabudową tuż obok otwartego terenu, który obecnie jest zieloną otwartą przestrzenią, a w przyszłość będąc tak zwanym zielnym „Klinem Wojszyckim” stanie się zieloną strefą relaksu i wypoczynku dla mieszkańców Jagodna i Wojszyc. Jednocześnie Jagodno to bardzo dynamicznie rozwijająca się dzielnica, gdzie w tym roku powstał szybki buspas z pętlą na ulicy Kajdasza, z licznymi sklepami, usługami od ulicy Buforowej. Pełna infrastruktura społeczna.
Inwestycja GOTOWA – mieszkania oddane do użytkowania. Zakup od dewelopera z rynku pierwotnego bez PCC i bez prowizji od strony Kupującej.
Zapraszam na prezentacje na inwestycji
Ania Cieślak - Doradca klienta
tel. 535 422 198
anna.cieslak@eliatre.pl
Nr oferty 14/2026
Zamieszczone na naszych stronach informacje nie stanowią oferty w rozumieniu Kodeksu Cywilnego oraz nie stanowią oferty handlowej w myśl Art.66 par. 1 Kodeksu cywilnego.
OFERTA CENOWA AKTUALNA NA DZIEŃ 26.01.2026 I OBOWIĄZUJE DO DNIA 26.01.2026



