Wrocław/ dolnośląskie
Ogłoszenie dodane: 27.03.2026
REZERWACJA OFERTY
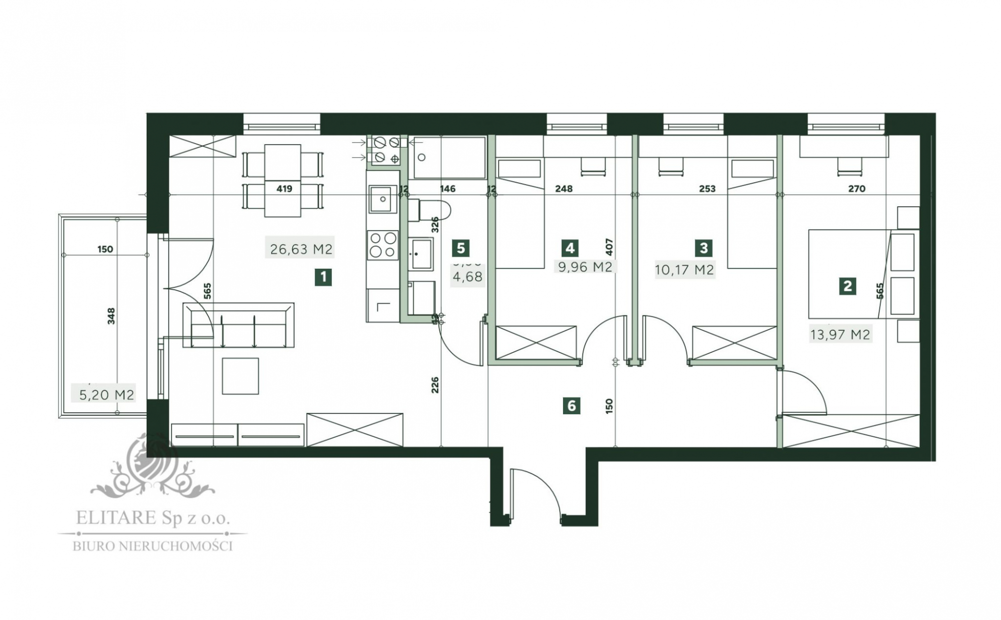
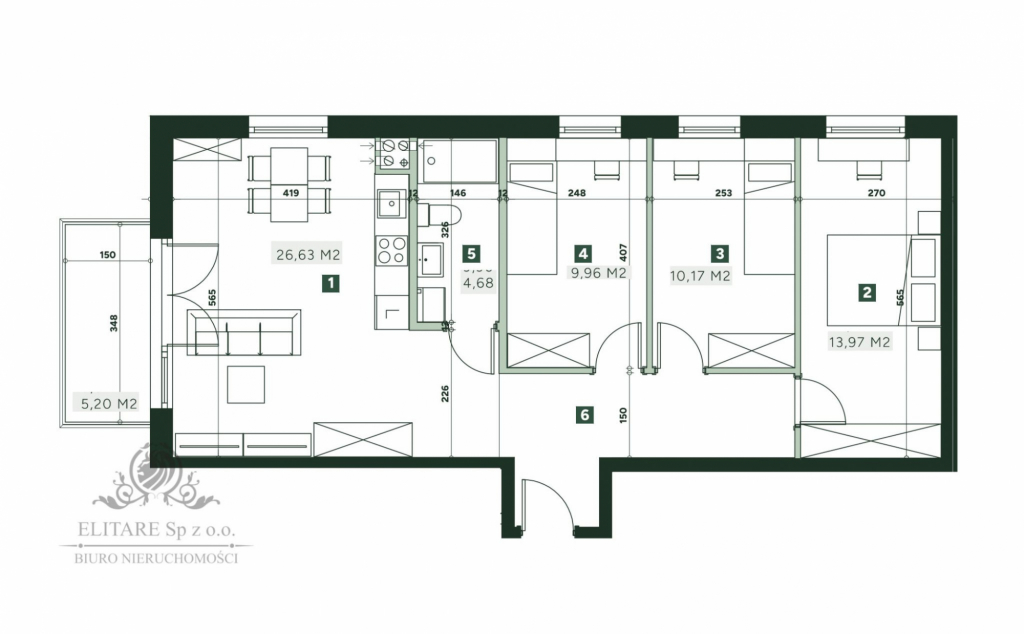
Rozkładowe, duże, 4 pokojowe mieszkanie o powierzchni 74,99m2 z balkonem o pow. 5,20m2 na zielonych, spokojnych Żernikach w zachodniej części Wrocławia.
Mieszkanie ma pow. 74,99m2 znajduje się na 3 piętrze w 3 piętrowym bloku z windą. Główna część mieszkania stanowi salon o pow. 26,63m2 z kuchnią w aneksie, z salonu wyjście na balkon o pow. 5,2m2, w mieszkaniu mamy dodatkowo trzy oddzielne pokoje o pow. 13,97m2, 10,17m2 i 9,96m2, mamy też łazienkę z toaletą o pow. 4,68m2 i przedpokój.
Mieszkanie jest dwustronne, narożne z ekspozycją północną i zachodnią, w bloku mamy wspólną, nowoczesną kotłownie gazową, a w częściach wspólnych zastosowano energooszczędne rozwiązania, takie jak panele słoneczne, zmniejszające koszty eksploatacji budynku.
W opcjach dodatkowych do mieszkania zakupić można miejsce postojowe naziemne w cenie 25tyś i/lub komórkę lokatorską w cenie 5000/m2. Liczba miejsc postojowych i komórek jest ograniczona więc ich dostępność i możliwość zakupu uzgadniania jest przed prezentacją.
Elegancki apartamentowiec idealnie wpisujący się w okolice z zieloną elewacją oraz wewnętrznymi ogrodami. Połączenie nowoczesnych rozwiązań technologicznych z naturalnym pięknem otoczenia daje mieszkańcom poczucie bliskości z przyrodą na co dzień, a jednocześnie zaledwie 20 minut od tętniącego życiem centrum Wrocławia. Mieszkańcy mogą cieszyć się bliskością restauracji, sklepów i miejsc rozrywki, a jednocześnie odpoczywać w zaciszu zielonych terenów osiedla. Tuż obok znajduje się Żernicki Park Sportu i Rekreacji idealne tereny dla aktywnych mieszkańców.
Świetna infrastruktura komunikacyjna umożliwia szybki i wygodny dostęp do każdej części miasta, a bliskość przystanków autobusowych sprawia, że podróżowanie staje się wyjątkowo komfortowe.
Inwestycja jest w trakcie realizacji z terminem na 30.04.2026– mieszkanie przekazywane do 31.05.2025 w stanie deweloperskim do własnej aranżacji. Dostępne są jeszcze większe 3 i 4 pokojowe mieszkania zapraszam do kontaktu zainteresowanych klientów. Zakup bezpośrednio od dewelopera bezpieczną umową deweloperską (bez PCC i bez prowizji).
Ania Cieślak- Doradca klienta
Zadzwoń, napisz maila
tel. 535 422 198
anna.cieslak@eliatre.pl
Nr oferty 14/AC
Zamieszczone na naszych stronach informacje nie stanowią oferty w rozumieniu Kodeksu Cywilnego, a dane w nich zawarte mają jedynie charakter informacyjny.
OFERTA CENOWA AKTUALNA NA DZIEŃ 26.03.2026 I OBOWIĄZUJE DO DNIA 26.03.2026



