Wrocław/ dolnośląskie
Ogłoszenie dodane: 13.11.2025
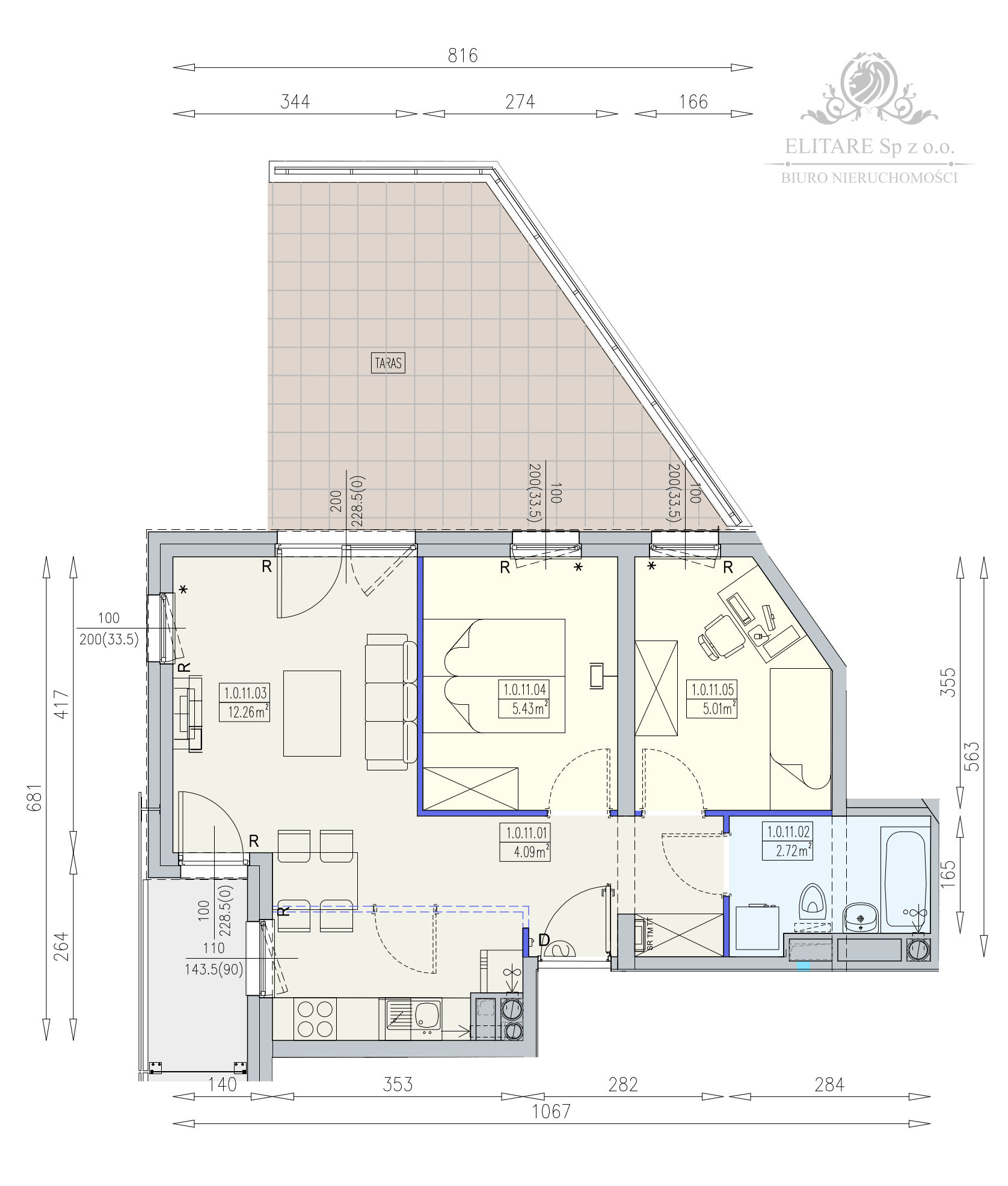
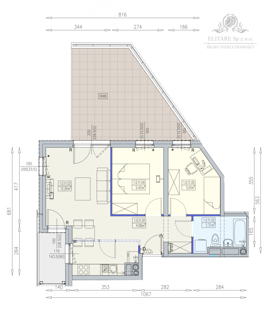
Klasyczne, 3 pokojowe mieszkanie z loggią i tarasem, dwustronne, narożne o powierzchni 52,46m2 w świetnej południowej lokalizacji - na wrocławskich Krzyki/Partynice tuż przy ul. Karkonoska.
Mieszkanie jest rozkładowe, 3 - pokojowe ma pow. 52,46 m2 znajduje się na parterze w 8 piętrowym bloku z windą z poziomu garaży. Od strony zachodnio-północnej mamy główną część mieszkania - salon z otwarta kuchnią o pow. 16,35m2 (kuchnię można też wydzielić jako osobną bo ma okno) z salonu wyjście na loggie o pow. 3,53m2 oraz taras o pow. około 35m2, od strony północnej mamy 2 oddzielne pokoje o pow. 5,43m2 i 5,01m2, w mieszkaniu jest też łazienka z toaletą o pow. 2,72m2, a w korytarzu jest miejsce na szafę w zabudowie. Zakup z rynku pierwotnego od dewelopera bezpieczną umową deweloperską (bez PCC i bez prowizji) Termin realizacji 2kwartał 2026.
Do mieszkania można dokupić miejsce postojowe w garażu podziemnym oraz komórkę lokatorską. Wysokość mieszkania 2,57m, ogrzewanie miejskie i wszystkie media miejskie!
Osiedle ma bardzo atrakcyjną lokalizacje na południu Wrocławia w granicach dzielnicy Krzyki, zlokalizowane przy Karkonoskiej, Przyjaźni. Osiedle powstaje w pobliżu dwóch dużych parków miejskich: Klecińskiego i Południowego oraz w sąsiedztwie Wrocławskiego Toru Wyścigów Konnych Partynice. W I etapie osiedla powstanie jeden z mniejszych budynków, mieszczącym 187 lokali, na 8 piętrach przewidziano oddanie do użytku przestrzenie mieszkalne mających od 1 do 4 pokoi i powierzchnię od 39 do 77 m². Na terenie budynku znajdzie się garaż podziemny dla 166 samochodów. Będą tam także pomieszczenia zapewniające przechowywanie niewielkich pojazdów i przedmiotów: rowerownia wyposażona w haki na jednoślady, wózkownia oraz komórki lokatorskie. W ramach I etapu nowo powstającego osiedla zaplanowano również: klub mieszkańca, plac zabaw dla dzieci i przestrzenie do wypoczynku z ławkami.
Inwestycja z terminem realizacji na 2 kwartał 2026 – atutem zakupu na tym etapie sprzedaży jest ciągle spory wybór i (patrząc na trend wzrostowy dla wartości mieszkań) atrakcyjna cena! Prezentacja odbywa się w biurze gdzie można przyjrzeć się zaprojektowanemu budynkowi i obejrzeć wybrane mieszkania w wizytacji 3d, z wizualizacją widoków z okien i balkonu – to pozwala na porównanie wyselekcjonowanych ofert i wybór wymarzonej nieruchomości. Zapraszam do kontaktu zainteresowanych klientów.
Ania Cieślak- Doradca klienta
tel. 535 422 198
anna.cieslak@eliatre.pl
Nr oferty 21/AC
Zamieszczone na naszych stronach informacje nie stanowią oferty w rozumieniu Kodeksu Cywilnego, a dane w nich zawarte mają jedynie charakter informacyjny.
OFERTA CENOWA AKTUALNA NA DZIEŃ 12.11.2025 I OBOWIĄZUJE DO DNIA 12.11.2025
https://www.archicom.pl/wroclaw/poludnik-17


