Wrocław/ dolnośląskie
Ogłoszenie dodane: 22.11.2025
Mieszkanie 1 pokojowe położone na 1 piętrze w 5-piętrowym apartamentowcu z windą w świetnej lokalizacji tuż obok Dworca Głównego – nowa jakość wpleciona w historyczną tkankę miejską.
Idealne miejsce do inwestycji w mieszkania na wynajmem krótkoterminowym.
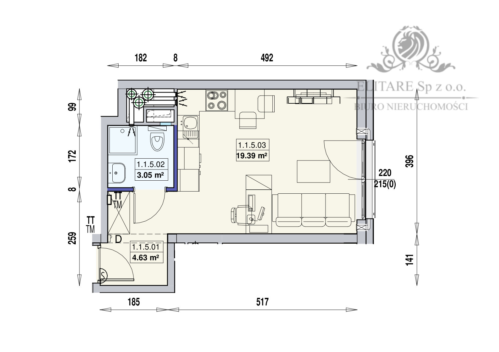
Powierzchnia mieszkania to 27,07 m2, na którą składa się pokój z kuchnią w aneksie o pow.19,39m2 z dużym oknem balkonowym, w mieszkaniu mamy też łazienkę z toaletą o pow. 3,05m2 oraz przedpokój z miejscem na szafę w zabudowie. Wysokość mieszkania 268cm.
Ekspozycja okien południowo-wschodnia, mieszkanie jednostronne z widokiem na ulicę i sąsiadujące kamienice. Media miejskie włącznie z ogrzewaniem, mieszkanie oddawane w stanie deweloperskim.
Apartamentowiec jest zabudową zamykającą historyczną uliczkę staromiejską. Tu współczesna architektura uzupełnia miejską tkankę, a funkcjonalne mieszkania tworzą przestrzeń do dynamicznego życia i dobrych inwestycji. Z myślą o komforcie użytkowników zaprojektowano:
- garaż podziemny z miejscami postojowymi oraz komórki lokatorskie na piętrach
- każdy apartament ma balkon albo od strony spokojnego wewnętrznego dziedzińca albo od strony dynamicznej historycznej ulicy z pocztówkowym widokiem na gmach Dworca Głównego
- w cenie apartamentu wchodzi wyposażanie w inteligentny zamek i system smart home w podstawowej funkcjonalności z możliwością dodatkowego rozszerzenia
- kontrola dostępu do budynku, wind i bram garażowych z poziomu aplikacji
- dla inwestora mamy też propozycje atrakcyjnej oferty cenowej wykończenia Pod Klucz typowo pod wynajem lub w klasie podwyższonej z myślą o luksusowym przyszłym najemcy lubo własnej wygodzie
- budynek wykończony wysokiej jakości materiałami o nowoczesnej formie, klatki schodowe w podwyższonym standardzie, budynek wyposażony w windy dostępne z poziomu garażu podziemnego. Szklane witryny wejściowe, eleganckie, nowoczesne i prestiżowe wykończenie budynku, dziedzińca i części wspólnych.
WYJĄTKOWA LOKALIZACJA – Stare Miasto, Przedmieście Świdnickie w odległości dwuminutowego spaceru od Dworca Głównego z bezpośrednim połączeniem autobusowym z wrocławskim Portem Lotniczym, w samym sercu komunikacji miejskiej tramwajowej, autobusowej i kolejowej jednocześnie zaledwie kilka minut spacerem dzieli Cię od kawiarni, barów i restauracji oraz od ulicy Bogusławskiego, czyli słynnego, wrocławskiego “nasypu”. Tu wieczorami dzieje się życie Wrocławia. To jedno z najmodniejszych miejsc spotkań i prawdziwa uczta dla zmysłów. Życie w centrum nowoczesnego miasta daje Ci wolność, a Nowy apartamentowiec to synonim mobilności i jedna z ciekawszych propozycji inwestycji.
TERMINY
Realizacja budowy do 10.2026r.
BEZPIECZNY ZAKUP
Umowa deweloperska / Bez PCC / Bez Prowizji od Kupującego.
DOSTĘPNE APARTAMENTY
Oferta funkcjonalnych mieszkań, głównie 1 i 2-pokojowych, o przemyślanych, ustawnych układach, zapewniających elastyczność aranżacji, jesteśmy już na końcówce sprzedaży z całej inwestycji dostępne jest tylko 19 mieszkań - nie czekaj, zadzwoń, przyjrzyj się dostępnej ofercie i umów się na prezentację lokali w 3D, zapraszam.
Ania Cieślak- Doradca klienta
tel. 535 422 198
anna.cieslak@elitare.pl
Nr oferty 28 /AC
Zamieszczone na naszych stronach informacje nie stanowią oferty w rozumieniu Kodeksu Cywilnego, a dane w nich zawarte mają jedynie charakter informacyjny.
OFERTA CENOWA AKTUALNA NA DZIEŃ 21.11.2025 I OBOWIĄZUJE DO DNIA 21.11.2025
https://www.archicom.pl/wroclaw/gwarna



