Wrocław/ dolnośląskie
Ogłoszenie dodane: 3 godziny temu
Mieszkanie 1 pokojowe położone na 4 piętrze w 5-piętrowym apartamentowcu z windą w super lokalizacji tuż obok Dworca Głównego na Starym Mieście w samym Centrum Wrocławia – nowa jakość wpleciona w historyczną tkankę miejską.
Idealne miejsce do inwestycji w mieszkania na wynajmem krótkoterminowym, a może świetnie zlokalizowane mieszkanie dla singla/pary!
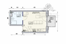
Powierzchnia kawalerki to 25,56 m2, na którą składa się pokój z kuchnią w aneksie o pow.19,47m2 z wyjściem na balkon 3,08m2, w mieszkaniu mamy też łazienkę z toaletą o pow. 6,09m2 oraz przedpokój z miejscem na szafę w zabudowie. Wysokość mieszkania 268cm. Ekspozycja okien wschodnio-południowa, mieszkanie jednostronne z widokiem na ulicę i miasto.
Media miejskie włącznie z ogrzewaniem, mieszkanie oddawane w stanie deweloperskim. Apartamentowiec jest inwestycją zamykającą historyczną zabudowę kamieniczną. Tu współczesna architektura uzupełnia miejską tkankę, a funkcjonalne mieszkania tworzą przestrzeń do dynamicznego życia i dobrych inwestycji. Z myślą o komforcie użytkowników zaprojektowano:
- garaż podziemny z miejscami postojowymi oraz komórki lokatorskie na piętrach
- każdy apartament ma balkon albo od strony spokojnego wewnętrznego dziedzińca lub od strony dynamicznej historycznej ulicy z pocztówkowym widokiem na gmach Dworca Głównego
- w cenie apartamentu wyposażone w inteligentny zamek i system smart home w standardzie podstawowym z możliwością dodatkowego rozszerzenia
- kontrola dostępu do budynku, wind i bram garażowych z poziomu aplikacji
- propozycja atrakcyjnej oferty cenowej wykończenia Pod Klucz typowo pod wynajem lub w klasie podwyższonej z myślą o sobie lub luksusowym przyszłym najemcy,
- budynek wykończony wysokiej jakości materiałami o nowoczesnej formie, klatki schodowe w podwyższonym standardzie, budynek wyposażony w windy dostępne z poziomu garażu podziemnego. Szklane witryny wejściowe, eleganckie, nowoczesne i prestiżowe wykończenie budynku, dziedzińca i części wspólnych.
WYJĄTKOWA LOKALIZACJA – Stare Miasto, Przedmieście Świdnickie w odległości dwuminutowego spaceru od Dworca Głównego z bezpośrednim połączeniem autobusowym z wrocławskim Portem Lotniczym, w samym sercu komunikacji miejskiej tramwajowej, autobusowej i kolejowej jednocześnie zaledwie kilka minut spacerem dzieli Cię od kawiarni, barów i restauracji oraz od ulicy Bogusławskiego, czyli słynnego, wrocławskiego “nasypu”. Tu wieczorami dzieje się życie Wrocławia. To jedno z najmodniejszych miejsc spotkań i prawdziwa uczta dla zmysłów. Życie w centrum nowoczesnego miasta daje Ci wolność, a Nowy apartamentowiec to synonim mobilności i jedna z ciekawszych propozycji inwestycji.
TERMINY
Realizacja budowy do 3 kwartał.2027r.
BEZPIECZNY ZAKUP
Umowa deweloperska / Bez PCC / Bez Prowizji od Kupującego.
DOSTĘPNE APARTAMENTY
Oferta funkcjonalnych mieszkań, głównie 1 i 2-pokojowych, o przemyślanych, ustawnych układach, zapewniających elastyczność aranżacji, jesteśmy już na końcówce sprzedaży z całej inwestycji dostępne jest tylko 19 mieszkań - nie czekaj, zadzwoń, przyjrzyj się dostępnej ofercie i umów się na prezentację lokali w 3D, zapraszam.
Ania Cieślak- Doradca klienta
Zadzwoń, napisz maila
tel. 535 422 198
anna.cieslak@elitare.pl
Nr oferty 19/AC
Zamieszczone na naszych stronach informacje nie stanowią oferty w rozumieniu Kodeksu Cywilnego, a dane w nich zawarte mają jedynie charakter informacyjny.
OFERTA CENOWA AKTUALNA NA DZIEŃ 23.04.2026 I OBOWIĄZUJE DO DNIA 23.04.2026
archicom.pl/wroclaw/gwarna

