Warszawa, Mokotów
Ogłoszenie dodane: 1 godzinę temu
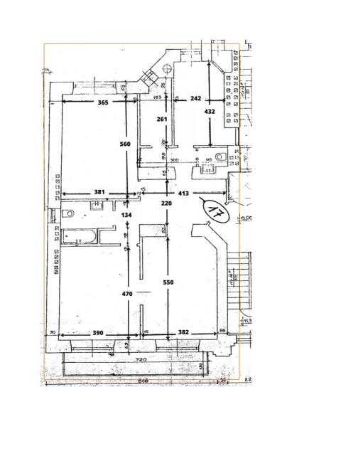
Lokal biurowy o pow.104 m, Stary Mokotów.
Elegancki, przestronny lokal biurowy, zlokalizowany w przedwojennej kamienicy.
Liczba pomieszczeń biurowych: 5.
Dodatkowa przestrzeń: reprezentacyjny, przestronny hol.
Piętro: 4 (kamienica 5 piętrowa).
Stan: bardzo dobry, podłoga: wykładzina dywanowa biurowa.
Umeblowanie: lokal nieumeblowany do indywidualnej aranżacji.
Klimatyzacja.
Idealne miejsce na: Kancelarię prawną lub notarialną, Agencję reklamową, marketingową, Gabinet doradztwa / psychologiczny. Pracownię projektową. Inne ciche działalności biurowe.
Cena najmu: 8 500 zł /m-c + opłaty administracyjne do Spółdzielni ( ok 1400) Kaucja : Czynsz jednomiesięczny.
Umowa : min 1 rok.
Agencja pobiera prowizje.
POLECAM !!
TEL: 609 724 569
Treść niniejszego ogłoszenia nie stanowi oferty handlowej w rozumieniu Kodeksu Cywilnego.
Treść niniejszego ogłoszenia nie stanowi oferty handlowej w rozumieniu Kodeksu Cywilnego.
Oferta wysłana z programu IMO dla biur nieruchomości



