Warszawa/ mazowieckie
Ogłoszenie dodane: 1 godzinę temu
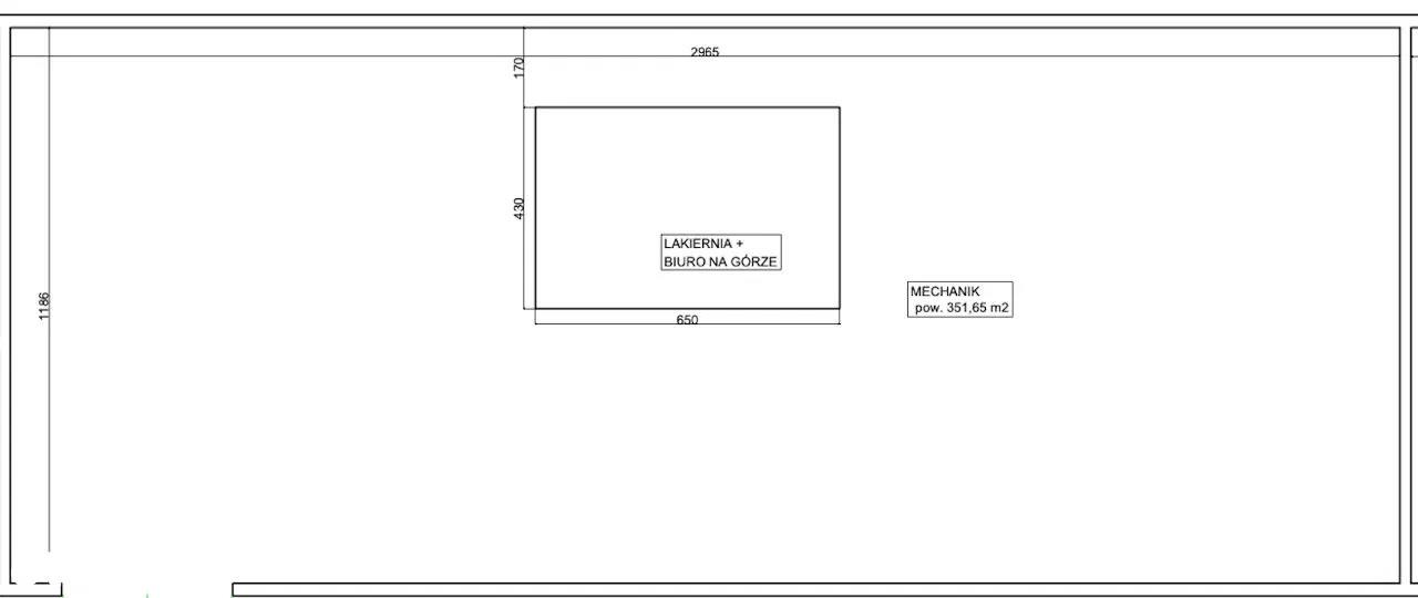
Magazyn o pow.351,65m2, znajdujący się na Ursynowie Wyczółki.
Idealna lokalizacja oddalona 1km od Lotniska Terminal Cargo oraz ok 2 km od trasy krajowej S2 i S8.
Budynek jedno poziomowy z bramą wjazdową:
- wysokość magazynu ok.5-6 metrów.
- w cenie lokalu 1 miejsca parkingowe do dyspozycji
- możliwość wynajęcia dodatkowych miejsc parkingowych.
Cena najmu 10 361,50zł netto.
Opłata eksploatacyjna 7,00 PLN/m2.- wliczona w cenę.
Kaucja.
Agencja pobiera prowizje.
POLECAM !!
TEL: 609 724 569
Treść niniejszego ogłoszenia nie stanowi oferty handlowej w rozumieniu Kodeksu Cywilnego.
Treść niniejszego ogłoszenia nie stanowi oferty handlowej w rozumieniu Kodeksu Cywilnego.
Oferta wysłana z programu IMO dla biur nieruchomości



