Rusinowo/ sławieński/ zachodniopomorskie
Ogłoszenie dodane: 24.09.2025
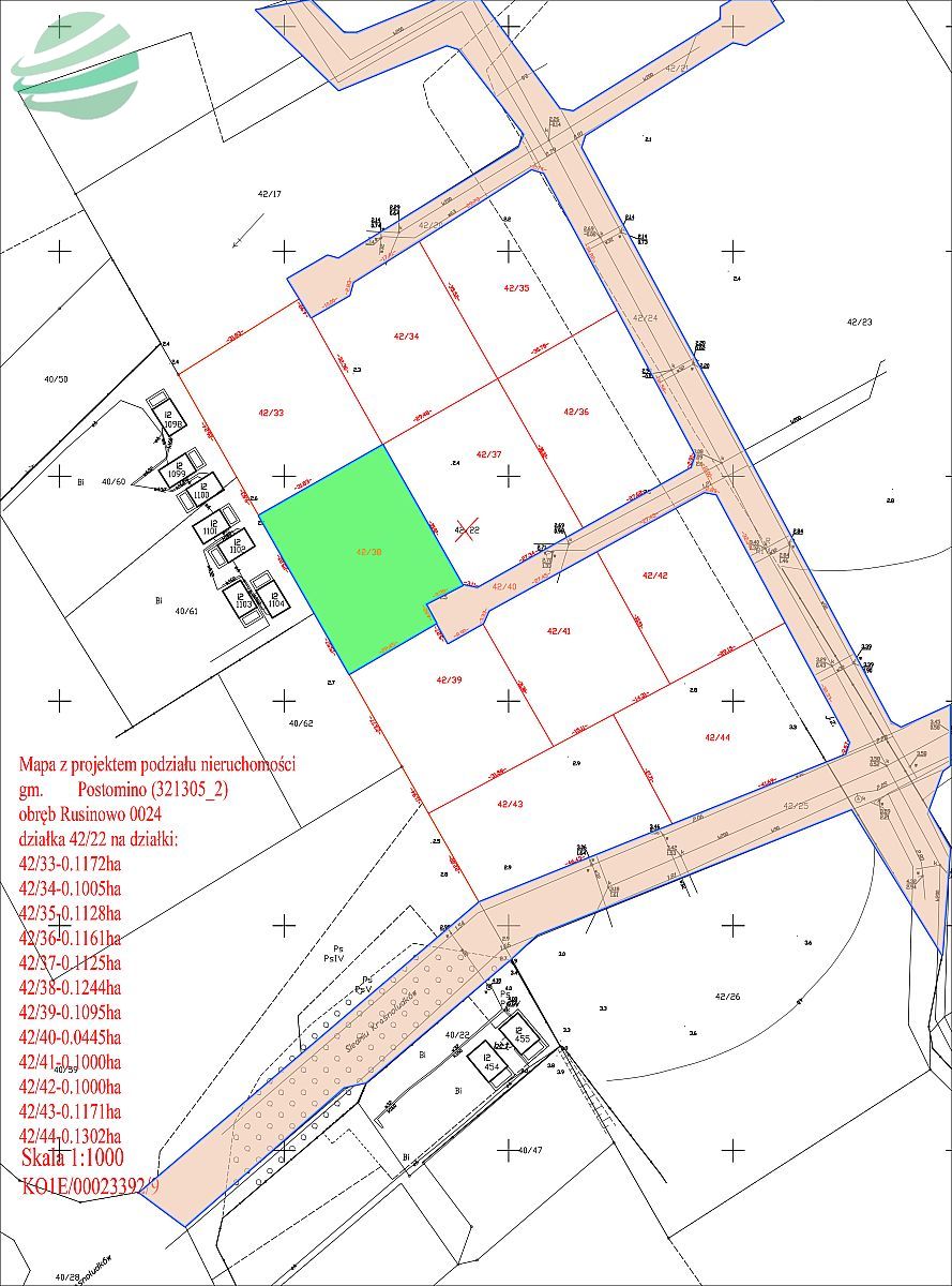
Z przyjemnością informujemy o wyprzedaży ostatnich działek budowlanych z mediami w I Kompleksie w miejscowości Rusinowo gmina Postomino.
Powierzchnia proponowanej nieruchomości to 1244m2 - Nie zwlekaj rezerwuj o zakupie decyduje kolejność zgłoszeń.
Cena proponowanej nieruchomości to 248800zł
Dwa kompleksy działek budowlanych nad morzem do sprzedaży, mieszczą się zaraz za pachnącym sosnowym lasem, który nadaje tej lokalizacji niepowtarzalny klimat.
To miejsce zapewni ciszę i harmonię z naturą, jednocześnie pozostając w odległości 800m-900m od piaszczystej plaży Bałtyckiej.
Spacer leśną drogą do Morza to około 10 minut.
Kanalizacja i woda z wodociągu drodze wewnętrznej przy granicy działki. Najbliższe sąsiedztwo to domki letniskowe i pensjonaty, apartamentowce.
Odległość do Jarosławca około 1,5km
W miejscowym planie zagospodarowania przestrzennego teren oznaczony C27ML - obiekty rekreacji indywidualnej i usług hotelarskich.
- wysokość zabudowy 2 do 3 kondygnacji naziemnych w tym poddasze użytkowe z dachem o nachyleniu od 35 do 55 stopni,
- maksymalna wysokość zabudowy do 12,5 m,
- maksymalna powierzchnia zabudowana na działce budowlanej (40% powierzchni działki),
- minimalna powierzchnia biologicznie czynna na działce budowlanej (30% powierzchni działki),
- oba kompleksy zawierają 19 wolnych działek budowlanych wg załączonej grafiki ( zielone - wolne, czerwone - sprzedane ) - decyduje kolejność rezerwacji.
Szczegółowe ustalenia planu: Uchwała nr. XXXVI/327/13 RADY GMINY POSTOMINO z dnia 2013-11-08
Te działki to doskonała inwestycja dla osób poszukujących miejsca do budowy swojego wymarzonego domu nad Morzem Bałtyckim lub też dla tych, którzy chcieliby zainwestować w obiekty rekreacji i usług hotelarskich.
Wachlarz możliwości jest naprawdę szeroki, od domków letniskowych i całorocznych, poprzez pensjonaty, apartamenty.
Jarosławiec i Rusinowo to okolica, która przyciąga turystów i miłośników przyrody przez cały rok.
Zapraszamy do kontaktu w celu uzyskania dodatkowych informacji i umówienia się na spotkanie w terenie. To wyjątkowa okazja, która nie powinna umknąć!
Przy zakupie kilku działek udzielamy rabatów.
Nie czekaj nieruchomości w tym rejonie cieszą się bardzo dużym zainteresowaniem.
Zadzwoń lub napisz .
Nie szukaj dalej, takie fajne działki blisko morza znajdziesz Tylko w naszym Biurze Nieruchomości.
Wszystkie nasze oferty znajdują się na www.nieruchomoscidarlowo.pl
Ogłoszenie sporządzone na podstawie oświadczenia sprzedającego. Treść niniejszego ogłoszenia nie stanowi oferty handlowej w rozumieniu Kodeksu Cywilnego. Treść ma charakter informacyjny i zalecamy ich osobistą weryfikację. Kontaktując się z biurem Klient wyraża zgodę na przetwarzanie danych osobowych zgodnie z przepisami ustawy z dnia 29 sierpnia 1997 roku o ochronie danych osobowych / Dz.U.Nr. 133 poz. 883/. Klientowi przysługuje prawo do wglądu do swoich danych osobowych i ich aktualizacji.
:: Oferta wysłana z programu mediaRent (media-rent.eu) ::


