Iwiny/ wrocławski/ dolnośląskie
Ogłoszenie dodane: 02.02.2026
Dom w zabudowie szeregowej - segment środkowy, dwukondygnacyjny o powierzchni łącznej 103,02m2 + poddasze nieużytkowe, dom z działką o powierzchni 149m2.
DOM zaprojektowany jest w wygodny, ergonomiczny sposób i posiada:
- strefę tj. dzienną na parterze o pow. 51,58m2
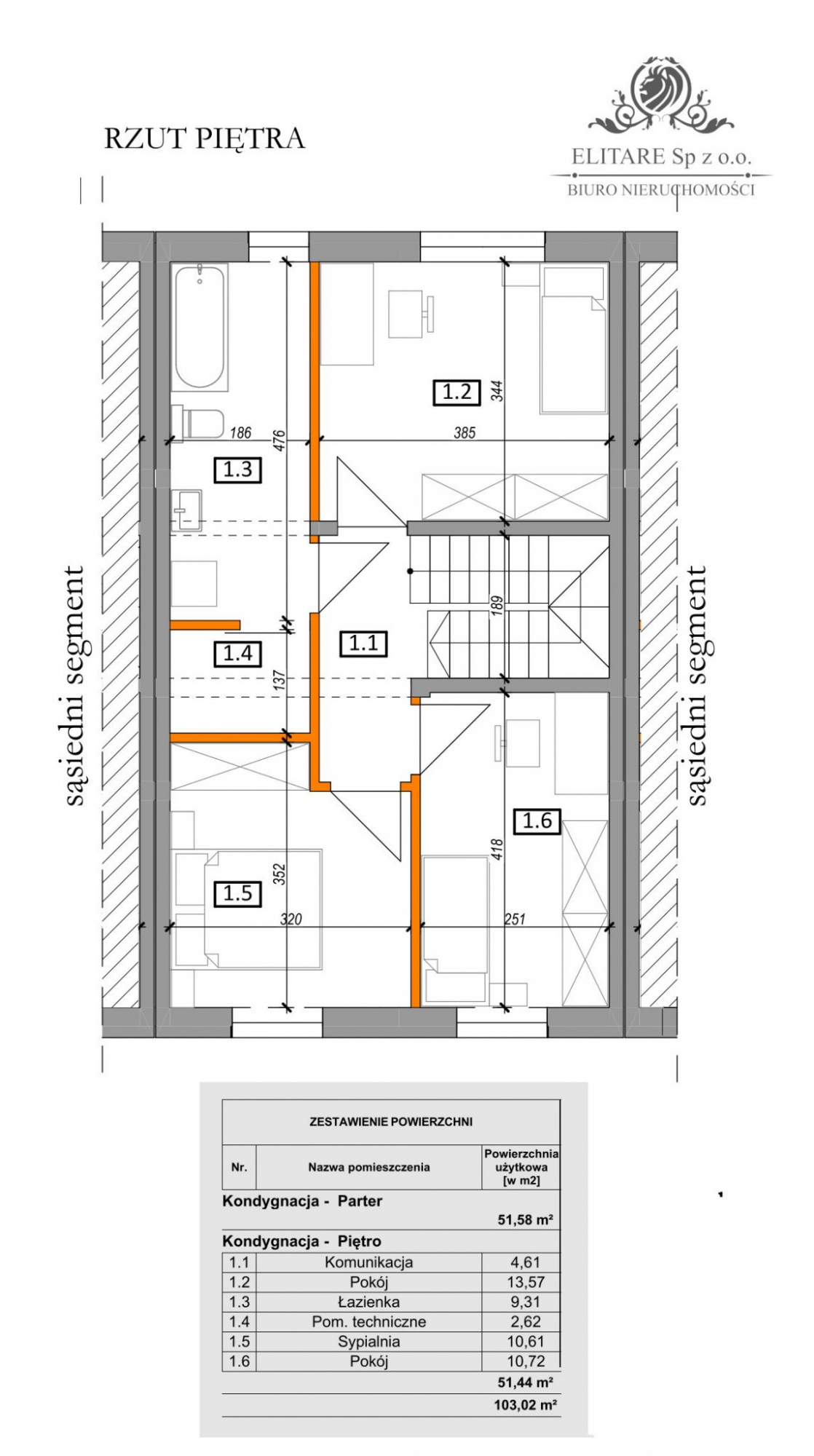
- strefę nocną na piętrze o pow. 51,44m2
STREFA DZIENNA na parterze to klasyczny układ otwartego salonu z jadalnią i kuchnią opow. 31,25m2 + przestrzeń pod schodami o pow. 2,6m2. Z salonu wyjście na własny ogródek z widokiem na pola i sąsiednie domy.
Na tym poziomie domu znajduje się również pierwsza łazienka o pow. 2,7m2 z toaletą, miejscem na umywalkę i prysznic, tuż przy wejściu mamy też dodatkowy pokój z oknem o pow. 8,7m2 idealny też na gabinet. Na tym poziomie mamy też pomieszczenie techniczne o pow.0,9m2, a schody żelbetowe z korytarza zaprowadzą Państwa na drugą kondygnacje do STREFY NOCNEJ.
STREFA NOCNA na piętrze to 3 oddzielne pokojowe o pow. 13,57m2, 10,61m2 i 10,72m2. Na tym poziomie znajduje się również druga duża łazienka o pow.9,31m2 z toaletą, miejscem na umywalkę, pralkę i wannę, mamy też pomieszczenie techniczne o pow.2,62m2.
PLUSEM jest poddasze, oddawane jako nieużytkowe, które można indywidualnie zagospodarować na dodatkowe 20m2, albo zostawić jako typowa przestrzeń do składowania sezonowych rzeczy.
STANDARD WYKOŃCZENIA, szczegółowy dostępny na maila, ale główne atuty podwyższonego standardu deweloperskiego to:
- zastosowane ogrzewanie podłogowe z pompą ciepła i całym osprzętem, dodatkowo wykonano instalacje do rekuperacji oraz pionowy kanał z rozdzielni elektrycznej na dach, który wykorzystać można na instalacje w foto-woltaiki
- wykonana skrzynka elektryczna przed budynkiem z doprowadzeniem do rozdzielni wraz z instalacją wewnętrzną oraz osprzętem elektrycznym
- sieć światłowodowa w domu
- woda i kanalizacja miejska,
- okna – stolarka PVC w okleinie dwustronnej –okna trzyszybowe
- rolety elektryczne na parterze
- schody żelbetowe z parteru na piętro
- całość osiedla zagospodarowana razem z podjazdami, ogrodzeniem od frontu panelowym od strony ogród siatka na podmurówce, w przestrzeni wejścia przed domem wyprowadzono zasilanie pod stacje ładownia samochodu elektrycznego.
- i wiele innych atutów, które szczegółowo opisane są w standardzie wykończenia
Dom szeregowy z własnym ogrodem, z nowoczesnym rozwiązaniami sięgającym w przyszłość – pompa ciepła w każdym domu, rekuperacja wspierająca ekonomiczne wykorzystaniem energii cieplej, instalacja fotowoltaiczna, instalacja pod stacje ładowania, światłowód w domu, a wszystko to realizowane w ramach kameralnego osiedla domów ze ślepa drogą wjazdową – to świetna propozycja na własną pierwszą Nieruchomość
Iwiny to spokojna miejscowość tuż pod Wrocławiem, która korzysta z bliskości pełnego zieleni Brochowa, jednocześnie zachowując kameralny podmiejski charakter.
Łatwa i szybka komunikacja z Wrocławiem oraz bliskość wschodnie Obwodnicy to gwarancja szybkiego dojazdu do pracy czy szkoły
Termin oddania domu do 30.06.2026
Zapraszam na prezentacja domu na inwestycji - zapraszam do kontaktu.
Ania Cieślak - Doradca klienta
tel. 535 422 198
anna.cieslak@eliatre.pl
Nr oferty 014_C/AC/2026
Zamieszczone na naszych stronach informacje nie stanowią oferty w rozumieniu Kodeksu Cywilnego oraz nie stanowią oferty handlowej w myśl Art.66 par. 1 Kodeksu cywilnego, a dane w nich zawarte mają jedynie charakter informacyjny.
OFERTA CENOWA AKTUALNA NA DZIEŃ 01.02.2026 I OBOWIĄZUJE DO DNIA 01.02.2026

