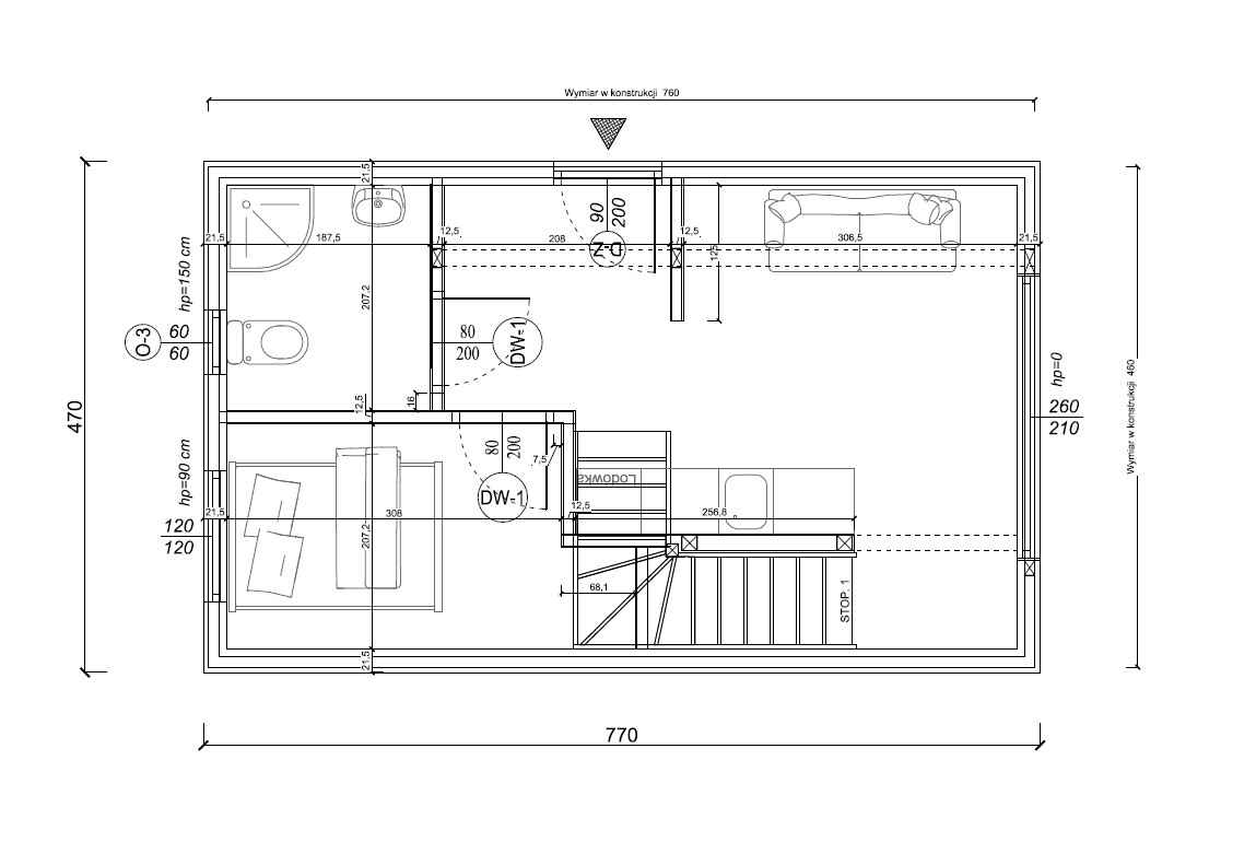
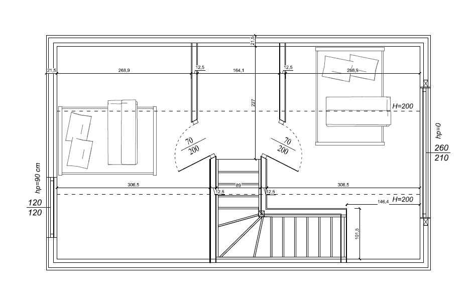
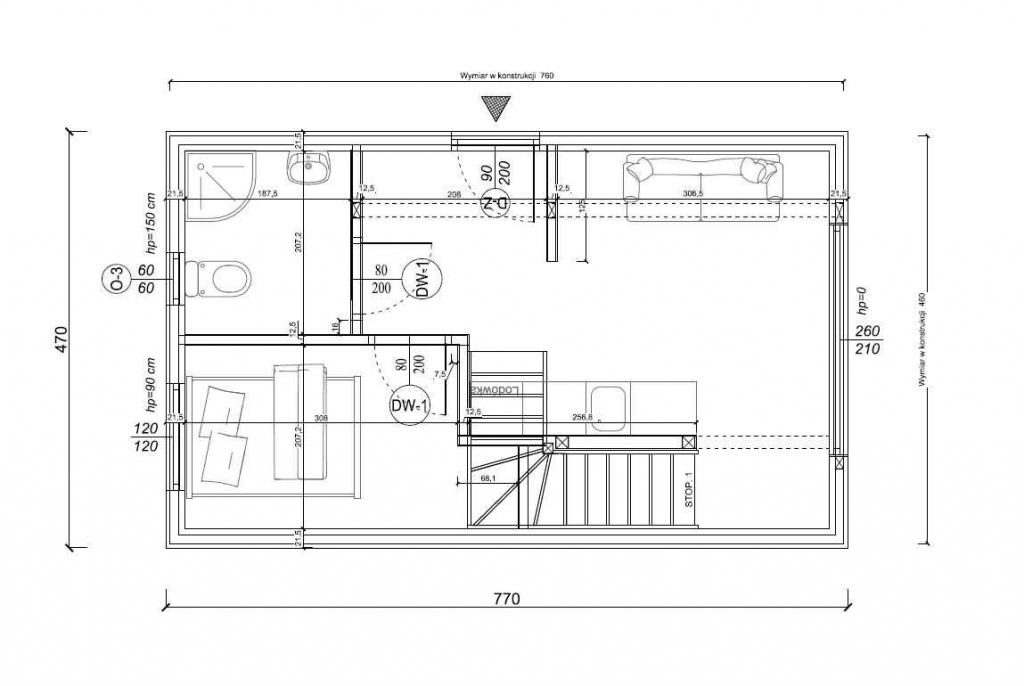
Dom drewniany modułowy Nebraska III projekt + budowa

180 000,00 zł

Stara Kiszewa/ kościerski/ pomorskie

Ogłoszenie dodane: 01.10.2025

Cena:
180 000,00 zł

Cena dotyczy budynku w stanie surowym zamkniętym. Do kwoty netto należy doliczyć 8% podatku VAT.

Przedstawiona oferta ma charakter informacyjny, nie stanowi oferty handlowej w rozumieniu Art.66 Kodeksu Cywilnego.
Zdjęcia zamieszczone na naszej stronie internetowej oraz przesłanej ofercie mają charakter poglądowy. Do każdej inwestycji podchodzimy indywidualnie, więc jeżeli w wycenie nie jest wyszczególniony np. taras, garaż, okna połaciowe, witryny, balkon, komin, piwnica, oświetlenie itp. to podana cena ich nie dotyczy – wymagają dodatkowej dopłaty.

180 000,00 zł

Kordian

Kordian

Kordian