ATRAKCYJNA DZIAŁKA W ŚWIETNEJ LOKALIZACJI

305 775,00 zł

Wierzyce/ gnieźnieński/ wielkopolskie

Ogłoszenie dodane: 09.03.2026

Cena:
305 775,00 zł
Powierzchnia działki:
2 265,00 m2
Na sprzedaż przez:
Agencja

Na sprzedaż bardzo atrakcyjna działka w miejscowości Wierzyce położonej przy ekspresowej drodze S5.

Bardzo szybki dojazd m.in. do:
- Gniezna (ok 15min),
- Kostrzyna (ok 10min),
- Pobiedzisk (ok 10min),
- Swarzędza (ok 22min),

Proponowana działka świetnie nada się dla rodziny oraz jako inwestycja kapitału.

Zlokalizowana jest nieopodal drogi ekspresowej S5, co niewątpliwie zwiększa wartość oferowanej nieruchomości.

Znajduje się ona na komfortowym osiedlu domów jednorodzinnych w otulinie licznej zieleni i lasów.
Jest to więc gratka dla osób ceniących sobie dobre skomunikowanie oraz bliskość ogromnych połaci natury.

Działka jest w formie kształtnego trapezu o wymiarach (ok):
- front 36,5m,
- boki: 72,4m i 77,5m,
- tył: 38,7m.

W drodze dojazdowej do działki znajdują się media:
- prąd,
- wodociąg,
- kanalizacja,
- gaz.

Droga dojazdowa od działki do drogi gminnej jest formalnie drogą prywatną, na której każdoczesny właściciel proponowanej działki posiada ustanowioną nieodpłatną służebność polegającą na prawie przechodu i przejazdu oraz przeprowadzaniu i eksploatacji mediów.

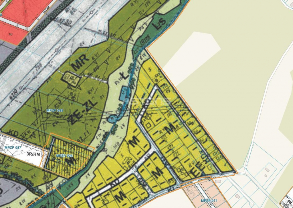
Oferowana działka objęta jest korzystnym miejscowym planem zagospodarowania przestrzennego, co ułatwi budowę domu.

Podstawowe założenia tego planu miejscowego dla przedmiotowej działki to:
- teren zabudowy mieszkaniowej jednorodzinnej z budynkami gospodarczymi i garażami;
- przeznaczenie dopuszczalne (uzupełniające): handel, mała gastronomia, drobne rzemiosło, zieleń;
- powierzchnia zabudowy maksymalnie 30% powierzchni działki;
- powierzchnia biologicznie czynna co najmniej 60% powierzchni działki,
- nieprzekraczalna linia zabudowy 6m;
- parter plus poddasze,
- dachy dwu- lub wielospadowe o nachyleniu 20st - 45st;
- budynki gospodarcze lub garaże nie powinny przekraczać powierzchni 50m2;
- z tyłu działki tereny łąk i pastwisk, a na tylnej granicy działki tereny cieków wodnych.

Część działki przeznaczona pod zabudowę została zaznaczona na jednym ze zdjęć.

Nieruchomość jest bez żadnych obciążeń i jest dostępna od zaraz!

Polecamy i zapraszamy!

Kontakt:
Artur Mokracki
Biuro nieruchomości ASTONS
tel. 696-833-453
e-mail: artur.mokracki@astons.pl
www.astons.pl

DODATKOWE INFORMACJE:
Typ własności: własność
Kanalizacja: miejska
Prąd: jest
Gaz: jest
Woda: w drodze
Kształt działki: trapez
Długość działki: 72,4
Szerokość działki: 36,5
Typ drogi: szutrowa
Typ ogrodzenia: siatka
Typ ulicy: osiedlowa
Odpis KW: tak
Plan zagospodarowania: tak
Wypis z rejestru gruntów: tak
Wyrys z rejestru gruntów: tak
Wypis z planu zagospodarowania: tak
Zaświadczenie z US: nie
Akt nabycia: nie
Mapka syt.: tak
Postępowanie spadkowe w toku: nie
Typ działki: budowlana

DANE KONTAKTOWE:
Artur Mokracki
696-833-453
artur.mokracki@astons.pl

Przedstawione dane mają charakter informacyjny i nie stanowią oferty w rozumieniu przepisów Kodeksu cywilnego.

SERDECZNIE ZAPRASZAMY DO KONTAKTU Z NASZYM BIUREM NIERUCHOMOŚCI.

WSZYSTKIE TRANSAKCJE PRZEPROWADZANE PRZY UDZIALE NASZEGO BIURA NADZOROWANE SĄ PRZEZ LICENCJONOWANEGO POŚREDNIKA I JEDNOCZEŚNIE PRAWNIKA. BIURO ASTONS NIERUCHOMOŚCI JEST UBEZPIECZONE OD ODPOWIEDZIALNOŚCI CYWILNEJ ZA WYKONYWANE CZYNNOŚCI POŚREDNICTWA. NIEODPŁATNIE POMAGAMY W WYBORZE NAJKORZYSTNIEJSZEGO FINANSOWANIA KREDYTOWEGO.

ŚWIADCZYMY PROFESJONALNE USŁUGI W ZAKRESIE POŚREDNICTWA PRZY SPRZEDAŻY, WYNAJMIE, JAK I KUPNIE NIERUCHOMOŚCI GŁÓWNIE NA TERENIE POZNANIA I OKOLIC.

WWW.ASTONS.PL

305 775,00 zł

Artur Mokracki

Artur Mokracki

Artur Mokracki