Wrocław, Krzyki
Ogłoszenie dodane: 02.03.2026
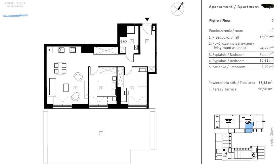
Mieszkanie, 65 m², WrocławLokalizacja: ul. Walońska, Przedmieście Oławskie, Wrocław Powierzchnia 65.67 patio: ponad 55 m² Piętro: parter Cena mieszkania: do negocjacji Cena miejsca postojowego: 65 000 PLN (obowiązkowe) Opis mieszkania Oferuję na sprzedaż nowoczesne 3-pokojowe mieszkanie w prestiżowej inwestycji Angel River, zlokalizowanej nad rzeką Oławą, w samym sercu Wrocławia. Mieszkanie wyróżnia się przestronnym, prywatnym patio o powierzchni ponad 55 m², które stanowi idealne miejsce do relaksu, spotkań towarzyskich czy uprawy roślin. Układ mieszkania: - przestronny salon z aneksem kuchennym- dwie niezależne sypialnie- nowoczesna łazienka- przedpokój Dodatkowe atuty: - wysokie sufity- klimatyzacja- pełne umeblowanie i wyposażenie- doskonała opcja inwestycyjnaPrzestronne patio Twój prywatny ogród w sercu miasta Unikalnym atutem mieszkania jest przestronne patio o powierzchni ponad 55 m², które stanowi rzadkość w miejskich inwestycjach. To idealne miejsce do: - organizowania spotkań z rodziną i przyjaciółmi- uprawy roślin i stworzenia własnego ogrodu- trzymania zwierząt domowych- urządzenia strefy relaksu lub miejsca do ćwiczeń- przechowywania sprzętu sportowego lub rowerów Angel River luksusowa inwestycja w sercu Wrocławia Angel River to nowoczesny kompleks mieszkaniowy zlokalizowany przy ul. Walońskiej, w prestiżowej dzielnicy Przedmieście Oławskie. Inwestycja wyróżnia się ponadczasową architekturą i wysokim standardem wykończenia. W budynku znajdują się: - recepcja z całodobową ochroną- strefa SPA z sauną, jacuzzi i siłownią- plac zabaw dla dzieci- sklep spożywczy i kawiarnia/piekarnia na parterze- stacja ładowania pojazdów elektrycznych- rowerownia i stacja rowerów miejskich- podziemny parking z miejscem postojowym dla każdego mieszkania Lokalizacja inwestycji zapewnia szybki dostęp do centrum miasta oraz terenów rekreacyjnych wzdłuż rzeki Oławy. W pobliżu znajdują się Politechnika Wrocławska, Plac Grunwaldzki oraz Dworzec Główny.
Interesuje Cię zakup tego mieszkania?
ZADZWOŃ! 724 773 779 (tel. preferowany – zawsze dostępny)
Agent prowadzący : Piotr Ogłaza
e-mail: piotr.oglaza@homeexpert.pl
Agencja Nieruchomości HOME EXPERT
ul. Inżynierska 49 / U25 (na parterze w biurowcu CORTE VERONA)
53-228 Wrocław www.homeexpert.pl/kontakt
Numer oferty: 20406/3584/OMS



