Wrocław, Śródmieście
Ogłoszenie dodane: 12.01.2026
Na sprzedaż przepiękne mieszkanie, w najstarszej, historycznej dzielnicy Wrocławia.
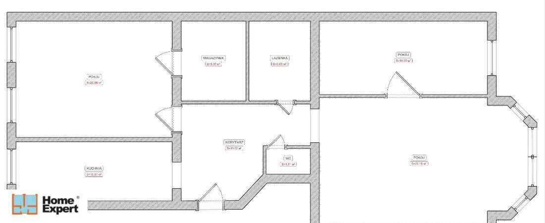
W skład mieszkania wchodzą:
-kuchnia,
-łazienka,
-toaleta,
-3 pokoje,
-garderoba,
-duży przedpokój.
Dodatkowo do mieszkania przynależy piwnica.
Miejsca parkingowe na podwórzu.
Okna z dwóch stron, od strony miasta oraz od podwórza.
W pełni umeblowane, gotowe do wprowadzenia.
Wszędzie blisko, zarówno do rynku jak i parków, sklepów, szkół, restauracji.
Po więcej informacji zapraszam do kontaktu!
CENA: 1.240.000 PLN
Interesuje Cię zakup tego mieszkania?
ZADZWOŃ! 724-002-153
Agent prowadzący : Natalia Mięszało
e-mail: natalia.mieszalo@homeexpert.pl
Agencja Nieruchomości HOME EXPERT
ul. Inżynierska 49 / U25 (na parterze w biurowcu CORTE VERONA)
53-228 Wrocław www.homeexpert.pl/kontakt
Numer oferty : 19974/3584/OMS



