Kleszczewo/ poznański/ wielkopolskie
Ogłoszenie dodane: 27.08.2025
3 pokoje do własnej aranżacji w Kleszczewie!
Zapraszam do zapoznania się oferty sprzedaży nowopowstałego 3-pokojowego mieszkania z tarasem, usytuowanego na drugim piętrze w inwestycji Kleszczewo, blisko Poznania.
Funkcjonalność i dogodny rozkład pomieszczeń, które można zaaranżować do własne potrzeby idealnie sprawdzi się dla każdego.
Cena: 484 146 PLN
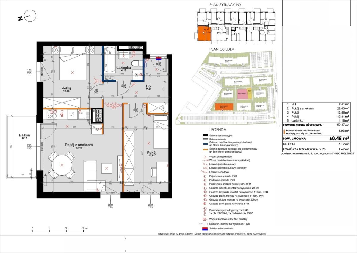
Powierzchnia: 60,45 m2
Na lokal składa się:
- Salon z aneksem kuchennym 22.43 m2,
- Pokój 12.56 m2,
- Pokój 12.81 m2,
- Łazienka 4.16 m2,
- Hol 7.41 m2.
Do mieszkania przynależy balkon o powierzchni 6.12 m2 oraz komórka lokatorska o powierzchni 1,62 m2.
Lokal jest gotowy do odbioru.
Lokalizacja:
Osiedle jest oddalone zaledwie 20 km od Poznania. Dojazd możliwy jest drogą ekspresową S5, a także sprawnie funkcjonującą komunikacją podmiejską. Do Ronda Rataje dojazd zajmuje 15 minut. Osiedle stanowi doskonałą lokalizację dla wszystkich, którzy pragną równowagi między życiem miejskim a naturą. To miejsce przyciąga nie tylko entuzjastów aktywności fizycznej, ale również tych, którzy szukają spokoju i relaksu. W okolicy inwestycji Kleszczewo znajduje się cała niezbędna infrastruktura oświatowo-handlowa, w tym m.in. szkoła, przedszkole, sklepy oraz kościół.
Atuty:
- Kupujący zwolniony od opłaty prowizji agencyjnej.
- Kupujący zwolniony jest z 2% podatku od czynności cywilno-prawnych (PCC).
- Indywidualne oraz ogólnodostępne miejsca parkingowe.
- Budynki z windą.
- Plac zabaw, wiaty i stojaki na rowery.
- W pełni wyposażony Klub Mieszkańca.
- Fotowoltaika.
Sprzedaż całej inwestycji, skontaktuj się w sprawie otrzymania kompleksowej oferty mieszkań spełniającej Twoje oczekiwania!
Zapraszam do kontaktu!
Nr oferty biura: 271559
Julita Pyzder: 720 805 204



